Faites un choix durable pour l’avenir en construisant avec Maisons Sic.
Maisons Sic vous propose de découvrir ce magnifique terrain de 419 m2 à Blagnac.
Ce terrain vous offre la possibilité de construire la maison de vos rêves en ossature bois, traditionnelle ou les deux.
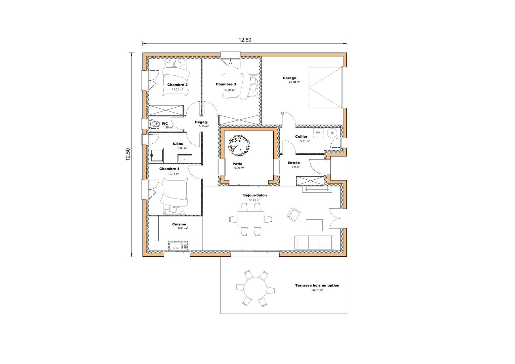
Imaginez vous vivant dans une maison de 98 m2, lumineuse, peu énergivore, spacieuse et confortable, avec des espaces de vie agréables, une cuisine ouverte, 3 chambres confortables, salle de bain équipée.
Toutes nos maisons RE2020 sont construites sur mesure, en ossature bois, maçonnées, ou mixtes.
Pour un prix total de 589 208 euros (frais de notaire et branchement compris).
Renseignement auprès de Clara Mages-Maison Sic au O6 66 64 11 12.
Cette annonce concerne un terrain vendu au prix de 300 000 euros, une maison au prix de 247 000 euros (hors finitions) aux normes RE2020 ; les frais de notaire s’élèvent à 21 808 euros + 20 400 euros de frais annexes (taxe d’aménagement, terrassement, raccordements, viabilisation …).
Ce terrain est vendu directement par un partenaire sans entremise du constructeur Maisons Sic.
.








