Capvern, à vendre, un terrain à bâtir d’une surface de 2 444 m2, exposé Sud, dans un quartier calme, à 20 minutes de Tarbes, 5 minutes de Lannemezan et de l’autoroute.
Terrain d’une valeur de 44 000 €, vendu directement par son propriétaire à contacter par vous, sans entremise du constructeur Maisons Sic.
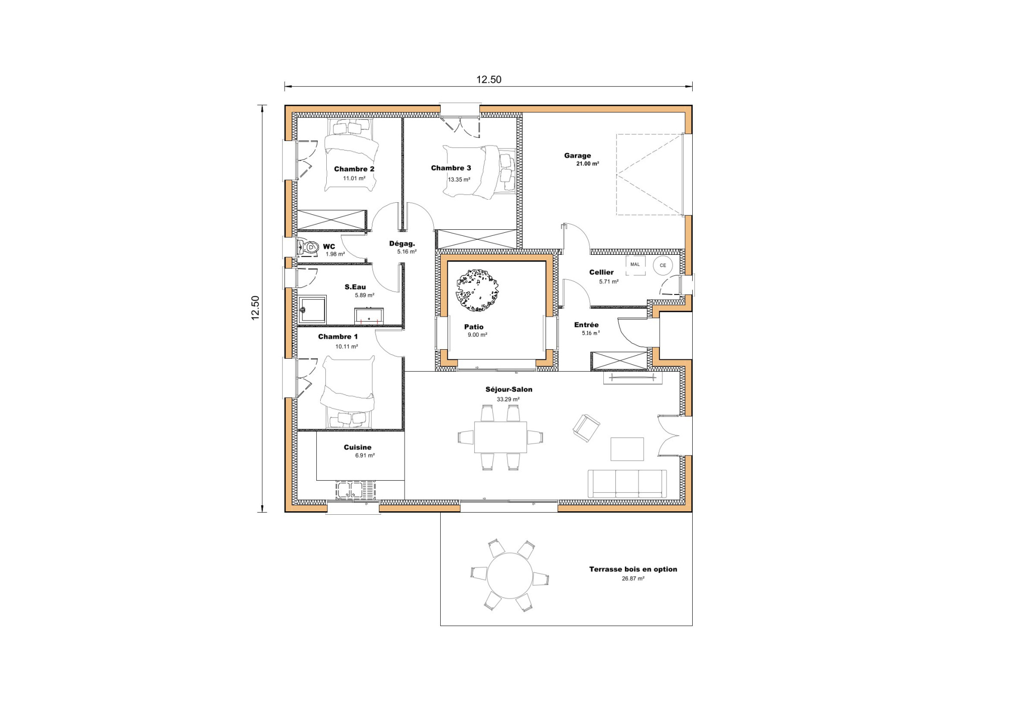
Patio en 98 m2 avec 3 chambres, cuisine ouverte, garage, patio, volets roulants électriques, et chauffage en pompe à chaleur Gainable.
Maison prête à décorer, d’une valeur de 219 595 € ttc.
Tarif incluant terrain d’une surface de 2 444 m2, frais de notaire, Vrd et maison: 283 895 € ttc.
Pour plus de renseignements, merci de contacter David Baldi, commercial Maisons Sic, au 06 13 72 46 77.
.











