Découvrez cette belle opportunité de construction dans la commune très recherchée de Colomiers, deuxième ville de Haute-Garonne aux portes de Toulouse.
Colomiers séduit par son cadre résidentiel verdoyant, sa vie associative et culturelle dynamique, ainsi que par sa proximité avec toutes les commodités: établissements scolaires de qualité, commerces, services de santé, infrastructures sportives et transports en commun (bus, train et future 3? ligne de métro).
Elle bénéficie également d’un accès rapide aux principaux axes routiers facilitant vos déplacements vers Toulouse, Blagnac ou Pibrac.
Le terrain proposé, d’une surface de 900 m2 non viabilisé, se niche dans une impasse calme d’un quartier pavillonnaire prisé proche du Parc du Cabirol.
Son environnement verdoyant et paisible, tout en restant à proximité des commodités, en fait un lieu de vie idéal pour les familles.
Ce terrain généreux permet d’envisager divers aménagements extérieurs: jardin, terrasse, piscine ou encore espace de jeux pour les enfants.
Maisons Sic vous propose d’y construire une maison contemporaine à ossature bois de 124 m2 sur deux niveaux, modèle Regency Bois, parfaitement adaptée à ce terrain.
L’ossature bois associe esthétique naturelle, confort thermique et acoustique ainsi qu’une empreinte écologique réduite.
Au rez-de-chaussée, vous découvrirez un vaste espace de vie lumineux grâce à de grandes baies vitrées donnant sur le jardin, intégrant un salon/séjour et une cuisine ouverte conviviale.
Un cellier ainsi qu’un garage sont pratique et pour finir un belle et grande suite parentale complète ce niveau.
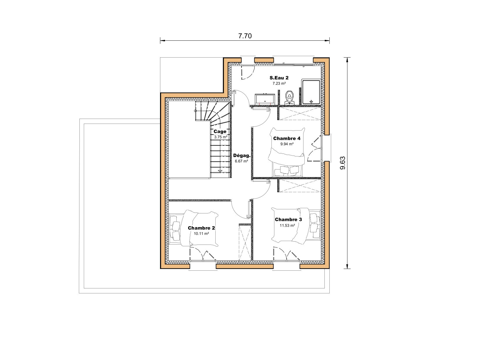
L’étage comprends trois chambres avec rangement, offrant confort et intimité.
Une salle de bain supplémentaire et un Wc indépendant complètent l’ensemble.
Cette maison répond à la réglementation environnementale RE2020, garantissant des performances énergétiques élevées et un habitat sain, économique et respectueux de l’environnement.
Comme pour tous nos modèles, les aménagements sont entièrement personnalisables: vous pouvez ajouter un garage, une terrasse ou d’autres extensions selon vos besoins.
Avec Maisons Sic, faites le choix d’un habitat moderne, esthétique et durable à Colomiers, dans un cadre privilégié alliant sérénité et proximité de la ville.
Le prix total du projet s’élève à 581 183 €, comprenant le terrain proposé à 250 000 €, la maison 285 400 € (hors finitions), les frais de notaire estimés à 20 283 €, ainsi que les frais annexes à hauteur de 25 500 € (taxe d’aménagement, terrassement, raccordements, etc.
).
Pour plus d’informations sur ce projet, contactez Laurie Levistre chez Maisons Sic au O7 82 39 78 Oo.
Le terrain est vendu directement par un partenaire, sans intermédiation du constructeur Maisons Sic.
.












