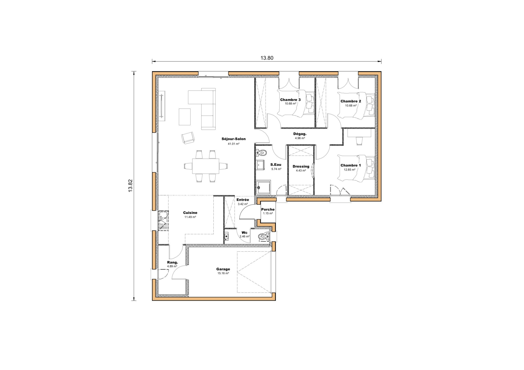
À 5 mn du Passage d’Agen et sur la commune d’Estillac, les maisons Sic vous propose sur ce terrain de 559 m2 plat et viabilisé, le projet de construction de cette belle villa en L de 112 m2 disposant de 3 chambres dont une avec dressing.
D’une salle de bains principale avec une douche italienne, d’un vasque et d’un Wc pour la partie nuit.
L’entrée propose un Wc avec lave mains ainsi qu’un grand placard.
Vous serez séduit par sa belle pièce de vie de presque 52m2 lumineuse du à ses nombreuses ouvertures.
Elle dispose également de nombreux rangements et d’une fonctionnalité repensée afin d’apporter un maximum de confort à chacun.
Son chauffage est assuré par une pompe à chaleur.
Maison entièrement personnalisable.
Maison certifiée Re 2020 avec assurance dommage ouvrage incluse.
Une étude de sol G2 sera réalisée.
Comme des milliers de famille depuis 52 ans maintenant, faites confiance au plus vieux constructeur de maisons individuelles en Lot et Garonne pour votre futur projet de construction.
L’ensemble du projet comprend la maison (prête à décorer), le terrain, les frais de notaire, les couts d’adaptation au sol et les couts liés au raccordement des différents réseaux techniques s’élève au prix de 254 383 €.
Terrain d’une valeur de 58 000 € vendu directement par son propriétaire, à contacter par vous et sans entremise du constructeur MAISONS Sic.
Contactez Cyril Martinelli au 06 15 39 92 99 pour plus d’informations.







