Découvrez la liberté de concevoir et de construire votre maison idéale sur l’un de nos terrain à bâtir.
Faites un choix durable pour l’avenir en construisant avec Maisons Sic.
Maisons Sic vous propose de découvrir ce magnifique terrain de 807 m2 viabilisé situé à L’isle jourdain dans un environnement agréable et calme.
Ce terrain vous offre la possibilité de construire la maison de vos rêves en ossature bois, traditionnelle ou les deux.
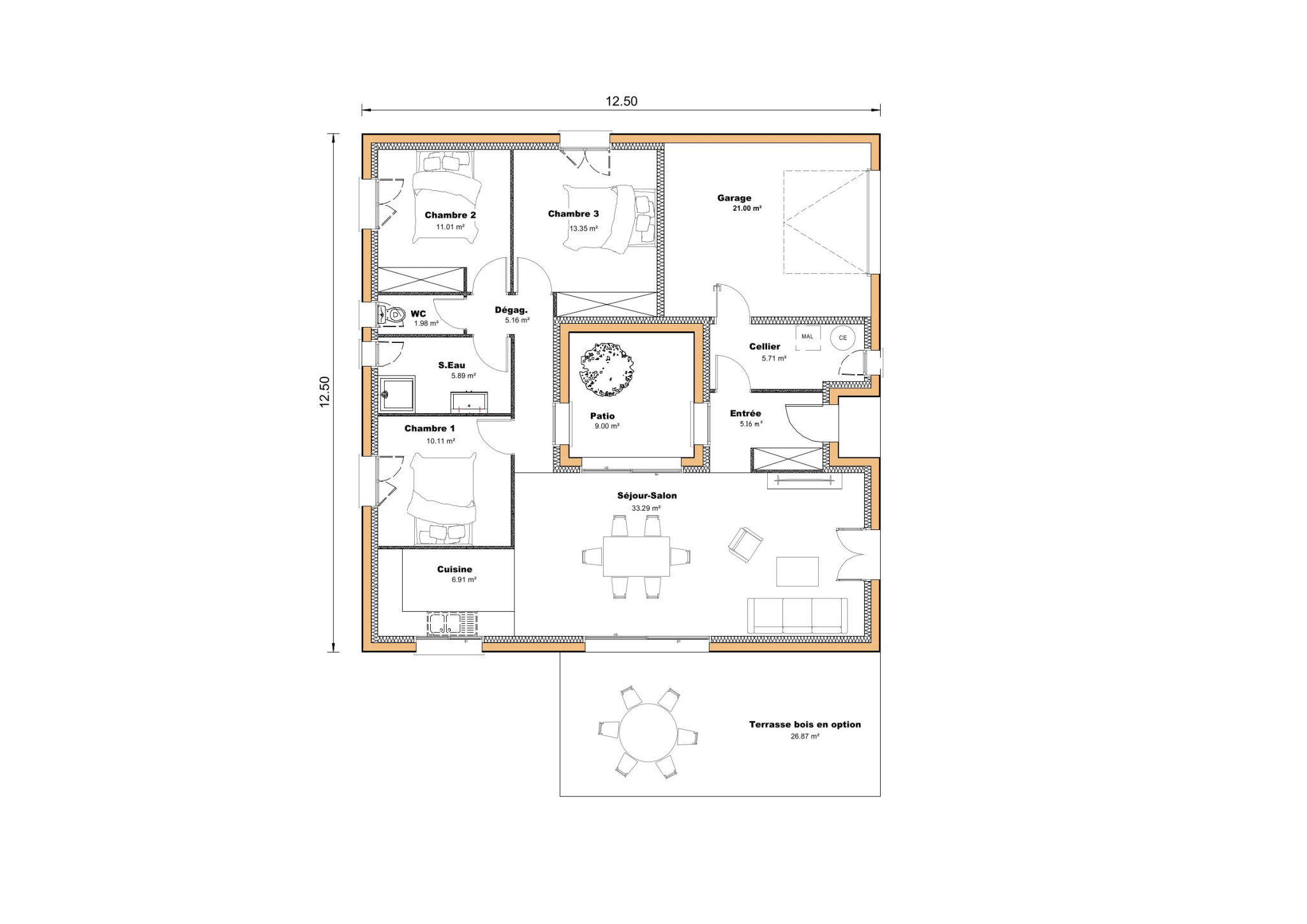
Imaginez vous vivant dans une maison de 98 m2 avec un garage, lumineuse, spacieuse et confortable, avec des espaces de vie agréables, une cuisine ouverte, 3 chambres confortables, salle de bain équipée.
Toutes nos maisons RE2020 sont construites sur mesure, en ossature bois, maçonnées, ou mixtes.
Pour un prix total de 380 732 euros (frais de notaire et branchement compris).
Renseignement auprès de Clara Mages-Maison Sic au O6 66 64 11 12.
Cette annonce concerne un terrain vendu au prix de 115 000 euros, une maison au prix de 230 000 euros (hors finitions) aux normes RE2020 ; les frais de notaire s’élèvent à 10 332 euros + 25 400 euros de frais annexes (taxe d’aménagement, terrassement, raccordements, …).
Ce terrain est vendu directement par un partenaire sans entremise du constructeur Maisons Sic.
.








