Découvrez ce projet idéalement situé au cœur de Meilhan, en hyper-centre du village.
Vous bénéficierez d’un environnement agréable, avec une partie boisée ainsi que l’accès au tout-à-l’égout (Tae).
Toutes les commodités sont accessibles à pied: commerces, services, école… un emplacement rare et recherché.
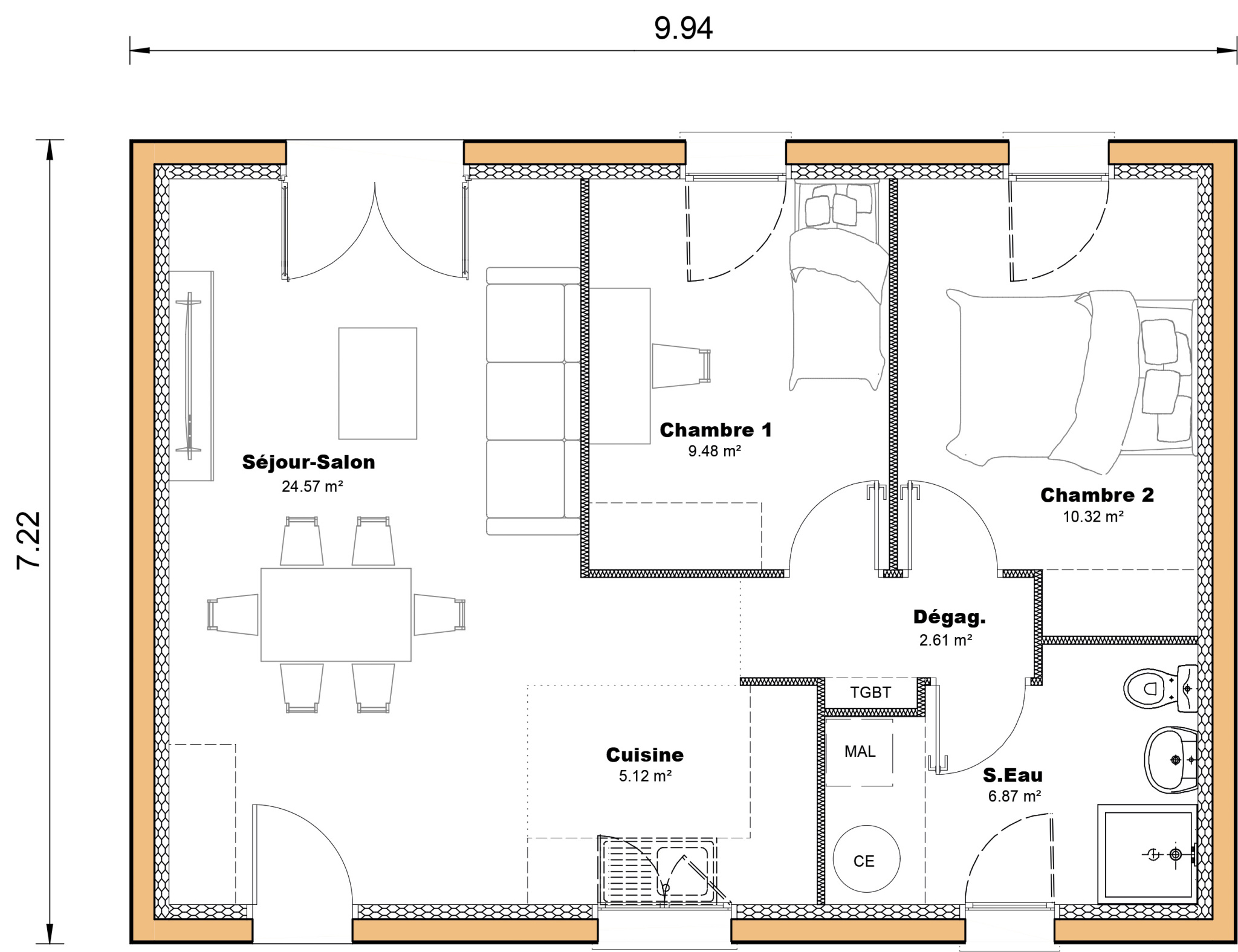
Description du terrain: Superficie: 700 m2 Situation: hyper centre village Environnement agréable, partie boisée Tae Description de la maison: Surface habitable: 58 m2 2 chambres Salle de bain + coin buanderie Pièce de vie de 30 m2 fonctionnelle et bien agencée Maison conforme RE2020 Chauffage climatisation réversible Volets électriques Un logement compact, optimisé et confortable, proposant tout le nécessaire pour une vie agréable.
Modèle parfaitement adapté pour primo-accédants, retraités ou investisseurs.
Prix de vente tout compris: 129 640 € Ttc(terrain + maison) À propos de Meilhan: Meilhan est un charmant village du Lot-et-Garonne offrant un cadre de vie paisible.
Vous y trouverez commerces, école et services de proximité, le tout dans une ambiance conviviale.
Sa localisation centrale permet de profiter d’un quotidien pratique, tout en bénéficiant d’un environnement naturel agréable.
Contact: Les Maisons sic Camille Simon 06 59 47 39 86 Mentions légales: Projet de construction proposé avec un terrain sélectionné pour vous auprès de nos partenaires fonciers, selon disponibilité.
Visuel non contractuel.
Les Maisons Sic n’est pas titulaire du mandat foncier.
.








