Faites un choix durable pour l’avenir en construisant avec Maisons Sic.
Venez découvrir ce magnifique terrain de 1 073 m2 viabilisé, situé à Mondonville, dans un emplacement privilégié sans vis-à-vis.
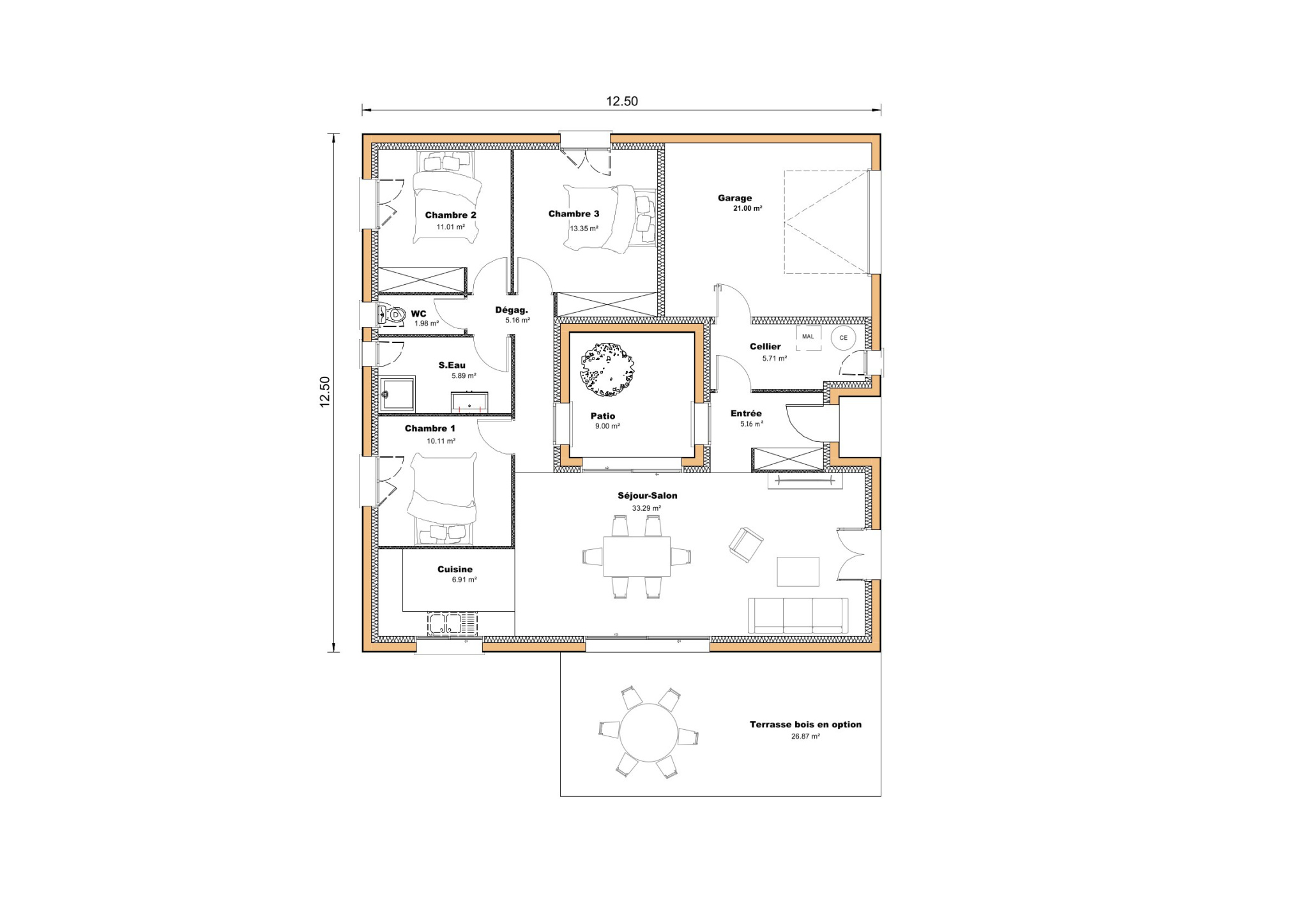
Imaginez vous vivant dans une maison de 100 m2 avec garage, lumineuse, spacieuse et confortable, avec des espaces de vie agréables, une cuisine ouverte, 4 chambres confortables, deux salles de bains équipées.
Toutes nos maisons RE2020 sont construites sur mesure, en ossature bois, maçonnées, ou mixtes.
Pour un prix total de 513 078 euros (frais de notaire et branchement compris).
Renseignement auprès de Clara Mages-Maison Sic au O6 66 64 11 12.
Cette annonce concerne un terrain vendu au prix de 230 000 euros, une maison au prix de 245 000 euros (hors finitions) aux normes RE2020 ; les frais de notaire s’élèvent à 17 678 euros + 20 400 euros de frais annexes (taxe d’aménagement, terrassement, raccordements, viabilisation …).
Ce terrain est vendu directement par un partenaire sans entremise du constructeur Maisons Sic.
.







