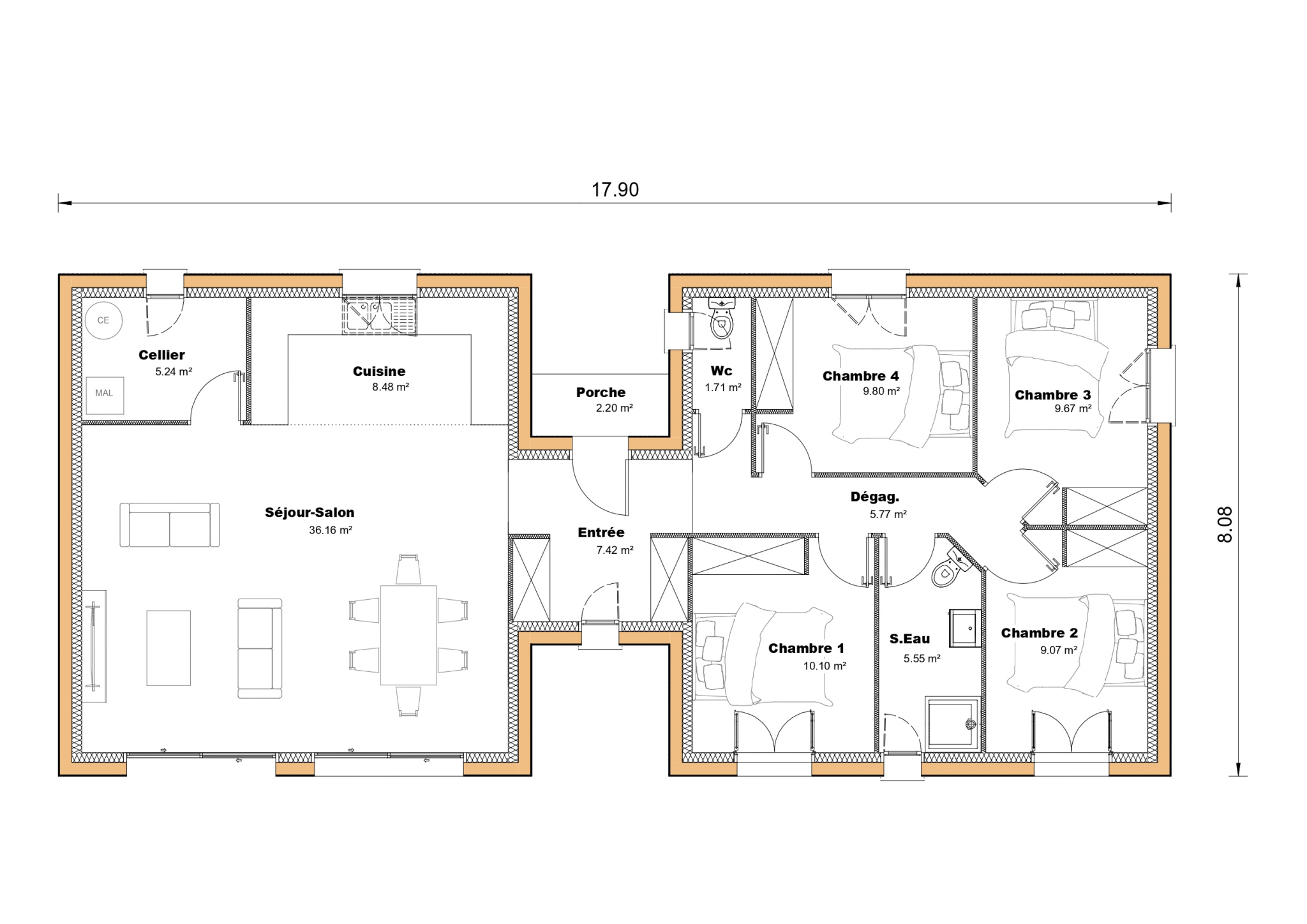
Venez découvrir cette très belle villa de 109 m2.
Après une entrée centrale avec rangements, se situe d’un côté une grande pièce de vie de plus de 45 m2, un cellier/buanderie, et un garage.
De l’autre côté se situent quatre chambres, une grande salle d’eau ainsi qu’un Wc séparé.
Le tout se trouve sur un beau terrain à Pont-Du-Casse et sur une parcelle de 932 m2 avec vue sur la campagne.
Que demander de plus!
Le chauffage est assuré par une climatisation réversible dans la pièce de vie et par des radiateurs dans les chambres.
Volets roulants électriques partout.
Maison entièrement personnalisable.
Maison certifiée Re 2020 avec assurance dommage ouvrage incluse.
L’ensemble du projet comprend la maison (prête à décorer), le terrain, les frais de notaire, les coûts d’adaptation au sol et les coûts liés au raccordement des différents réseaux techniques ainsi que l’assainissement individuel et s’élève au prix de 283 290 Eur.
Terrain vendu directement par son propriétaire sans entremise de la part des Maisons sic.
Pour tous renseignements contactez Cyril Martinelli au 06 15 39 92 99.








