Soual, à vendre, un terrain à bâtir d’une surface de 1160 m2, au sein d’un écrin de verdure et dans un quartier calme, situé à 15 minutes de Castres et de Revel.
Pharmacie, centre médical, supermarché et échangeur d’autoroute sont les atouts supplémentaires de ce charmant village aux portes de Toulouse.
Terrain d’une valeur de 58 000 €, vendu directement par son propriétaire à contacter par vous, sans entremise du constructeur Maisons Sic.
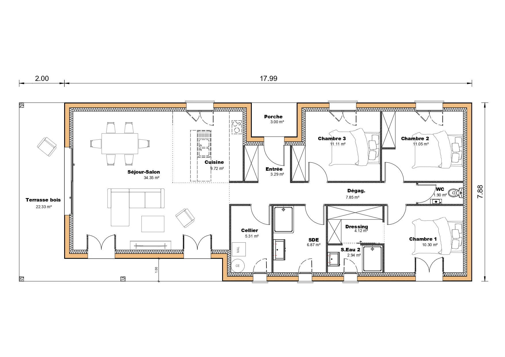
LongÈRe en 108 m2 avec 3 chambres, cuisine ouverte, terrasse couverte, volets roulants électriques, et chauffage en pompe à chaleur Gainable.
Maison prête à décorer, d’une valeur de 205 153 € ttc.
Tarif incluant terrain d’une surface de 1160 m2, frais de notaire, Vrd et maison: 295 853 € ttc.
Pour plus de renseignements, merci de contacter David Baldi, commercial Maisons Sic.




