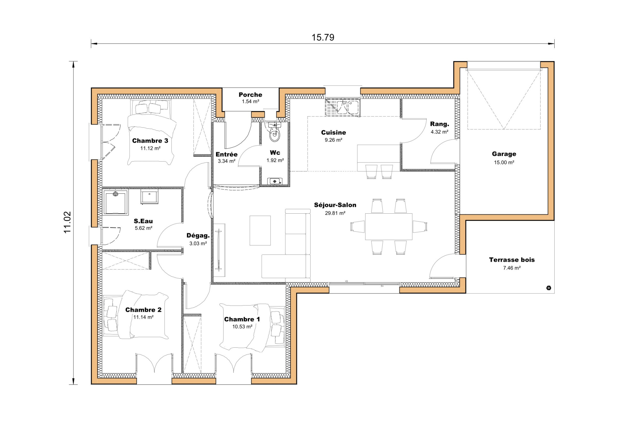
Saint Sixte, à 10mn de la centrale de Golfech et 15 mn de la zone O’Green, les maisons Sic vous propose sur ce terrain de 940 m2 plat et viabilisé, le projet de construction de cette belle villa en L de 90 m2 disposant d’une fonctionnalité repensée afin de créer deux espaces bien distincts.
Elle profite d’une belle luminosité et en devient très confortable et spacieuse.
Elle dispose également de nombreux rangements, d’un garage et d’une terrasse couverte.
Son chauffage est assuré par une pompe à chaleur.
Maison entièrement personnalisable.
Maison certifiée Re 2020 avec assurance dommage ouvrage incluse.
Comme des milliers de famille depuis 52 ans maintenant, faites confiance au plus vieux constructeur de maisons individuelles en Lot et Garonne pour votre futur projet de construction.
L’ensemble du projet comprend la maison (prête à décorer), le terrain, les frais de notaire, les couts d’adaptation au sol (approfondissement des fondations à 1, 20ml du terrain naturel suite au rapport de l’étude de sol G1 fourni par le vendeur) et les couts liés au raccordement des différents réseaux techniques s’élève au prix de 240 245 €.
Terrain d’une valeur de 49 000€ vendu directement par son propriétaire, à contacter par vous et sans entremise du constructeur MAISONS Sic.
Contactez Cyril Martinelli au O6 15 39 92 99 pour plus d’informations.



