A venir!
Réservez votre terrain sur le nouveau lotissement au centre de Thèze!
16 lots viabilisés, raccordés au tout à l’égout.
Surfaces de 600m2 à 860m2, idéal pour construire sa maison quelle que soit sa surface!
Au centre du village, exposé sud et en retrait de la route de Pau, ce terrains ont tous les avantages, y compris leur prix très raisonnable.
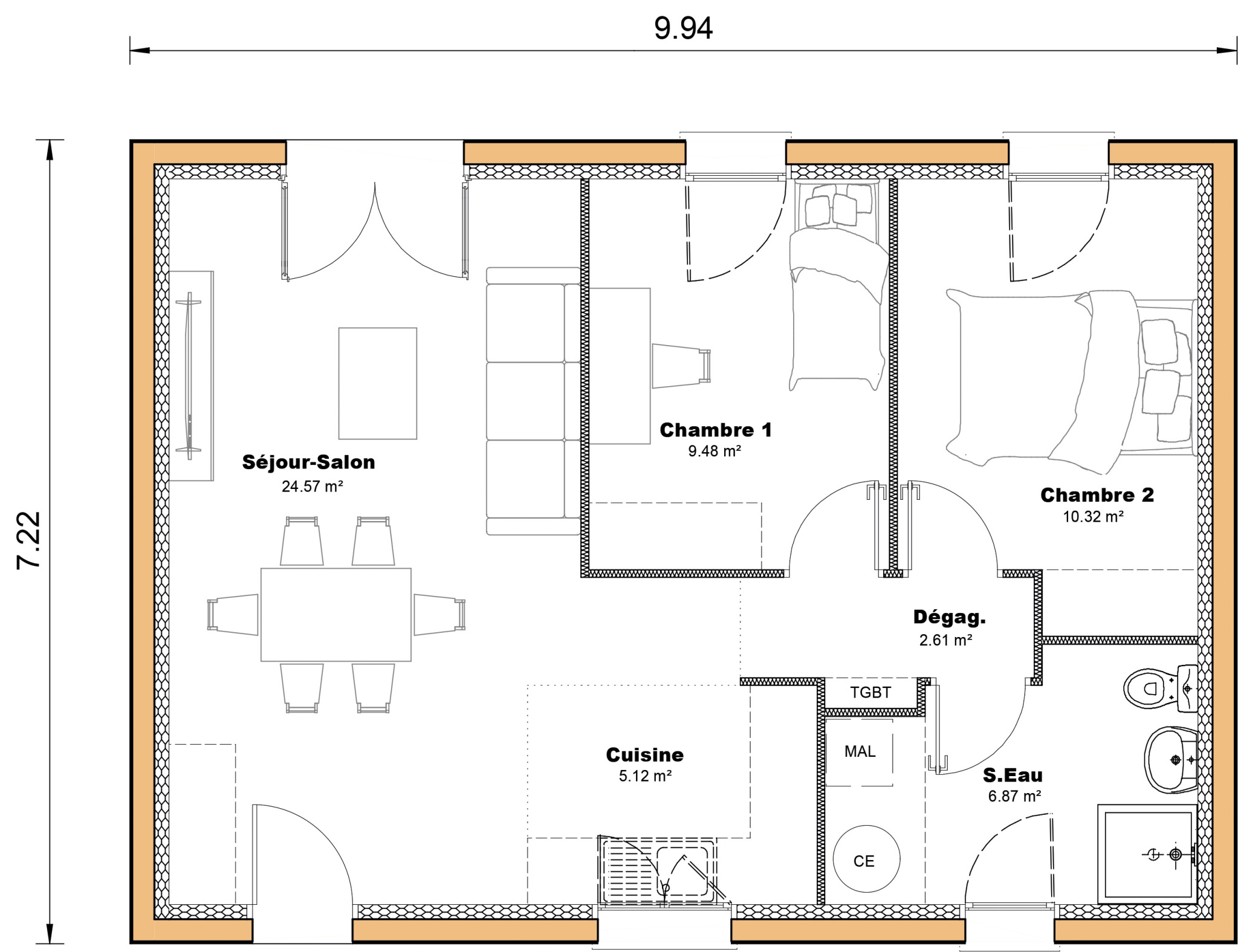
Nous vous proposons de construire sur le lot no9 de 600m2 notre modèle primo 70m2, avec ses 3 chambres et sa grande pièce de vie.
Pensée pour de hautes performances énergétiques, elle offre un vrai espace d’intimité à chacun de ses occupants tout en maitrisant son budget.
Nous vous proposons ce projet clés en mains.
Il restera à votre charge les peintures intérieures et la cuisine.
Construction traditionnelle en brique joints minces sur vide sanitaire.
Conforme à la RE2025, classe énergie A.
Tous nos modèles sur notre site sic-habitat.
com.
Nos modèles sont proposés en construction traditionnelle ou ossature bois (ou mixte) et sont personnalisables en fonction de vos goûts et besoins.
Nous travaillons également sur vos propres plans, sur mesure.
Différents types de chauffage disponibles.
N’hésitez pas, contactez Christophe au O6.
78.
92.
10.
95 pour prendre rendez vous-Contrat Ccmi, garanties incluses: Rc entreprise, décennale, dommage ouvrage, biennale, prix fixes et définitifs, délai de construction, parfait achèvement.
Tarif estimatif terrain + construction: 171018€- Prix maison seule: 120918€-Prix du Terrain: avec frais de notaire terrassement et raccordements: 50100€-Bon d’achat cuisine offert de 2500€ pour tout contrat souscrit.
Terrain en vente directe par notre partenaire en transactions immobilières sans entremise des Maisons Sic.
.







