Exclusivite sur le SECTEURMaison neuve à construire Terrain d’exception de 6 500 m2, divisible, situé sur les hauteurs de Montjoie en Couserans, que Maisons Sic vous présente grâce à l’un de nos partenaires fonciers.
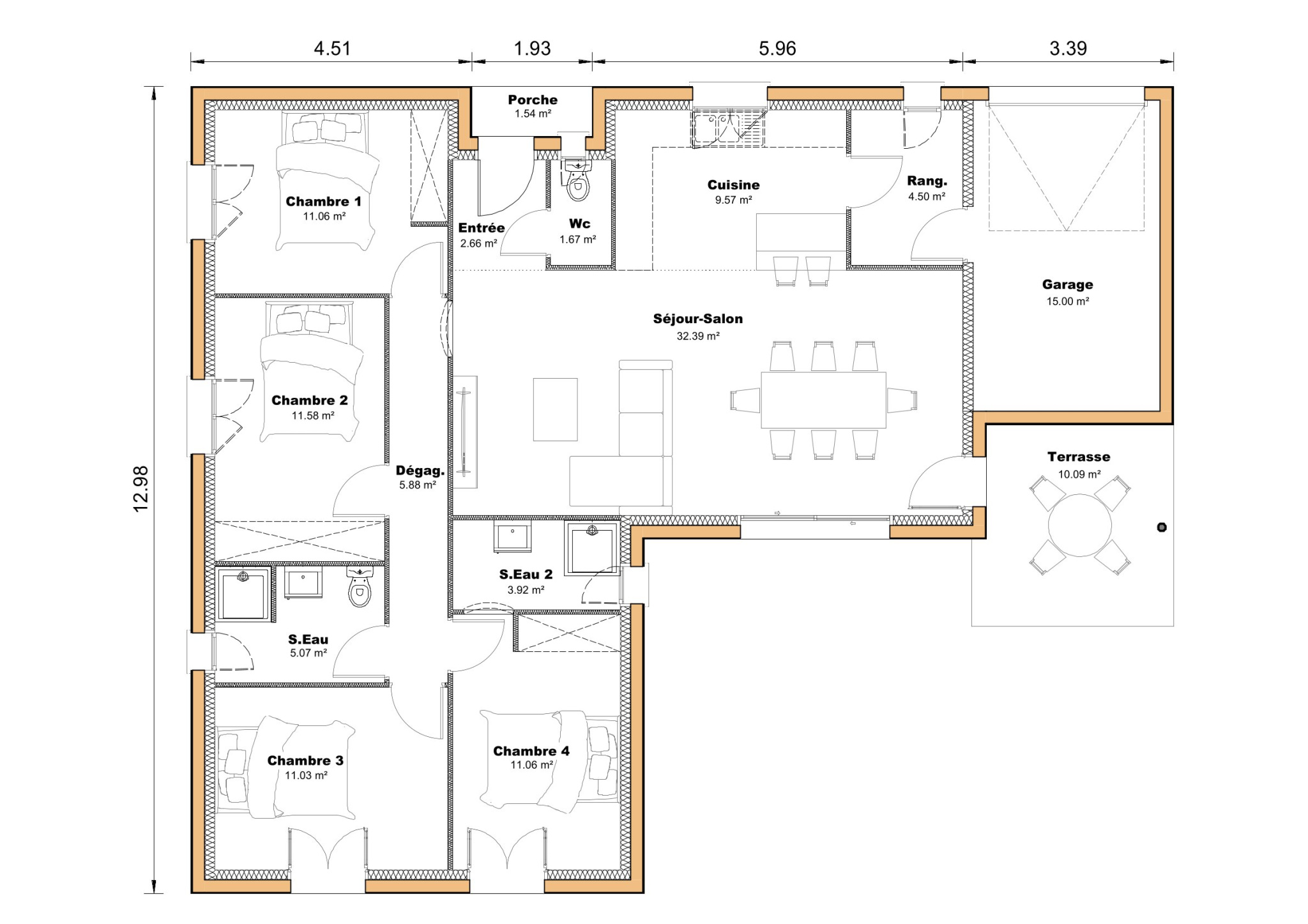
Vous pourrez, par exemple, y faire construire une maison bois de plain pied de 110 m2 agencée comme suit: entrée avec porche, terrasse couverte de 10m2, espace de vie de 32m2, ouvert sur une cuisine de 9m2, salle de bains équipée, trois jolies chambres de 11m2 avec rangement, une superbe suite parentale de 15m2 et un cellier de 4m2 (chauffage gainable, prestations de qualité).
Pour un prix de 357 975 euros (frais de notaire et branchements Compris).
Maisons Sic, présent depuis plus de 50 ans dans la construction de maison individuelle, vous propose un accompagnement total pour votre projet de vie.
Plan personnalisable et prestations ajustable à toute vos envies!
Renseignements auprès de Julie Negol-Maisons Sic agence de Noé au O6 75 09 50 67.
Cette annonce concerne un terrain vendu au prix de 120 000 euros, une maison vendue au prix de 205 000 euros (hors finitions) aux normes RE2020; les frais de notaire s’élèvent à 10 075 euros + 22 900 euros de frais annexes (taxe d’aménagement, terrassement, raccordement.
).
Ce terrain est vendu directement par un partenaire sans entremise du constructeur Maisons Sic.
.



