
Constructeur de maisons individuelles depuis 50 ans
dans tout le sud-ouest de la France
Constructeur de maisons individuelles depuis 50 ans
dans tout le sud-ouest de la France

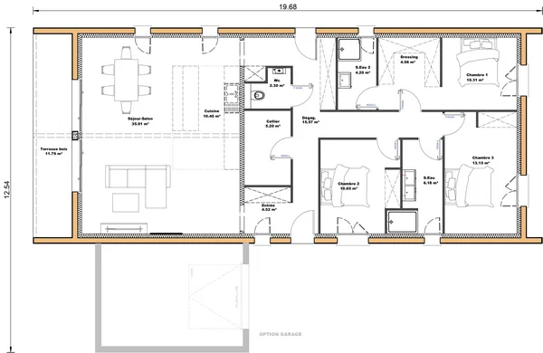
Distinguez-vous avec cette villa à l’architecture atypique où l’espace de vie s’ouvre généreusement sur l’extérieur. Laissez-vous séduire par son grand châssis vitré en hauteur qui inonde le salon de lumière et signe son caractère contemporain.
Retrouvez tout l’esprit de ce modèle dans sa version 98 m². Voir le modèle 98 m².
Optez pour une maison encore plus naturelle et performante avec la version ossature bois. Voir la version bois
L’ensemble de nos modèles de maison sont entièrement personnalisables et peuvent s’adapter à toutes les familles et toutes les envies.
Surface Habitable
Chambres
Salles de bain
Etage
Garage
Terasse
Cellier
Depuis 50 ans, nous vous accompagnons de A à Z dans vos projets de vie dans le Sud-Ouest de la France.
Protection complète pendant 10 ans
Un savoir-faire reconnu depuis 1975
13 agences dans le Sud-Ouest
Chaque maison est unique