
Constructeur de maisons individuelles depuis 50 ans
dans tout le sud-ouest de la France
Constructeur de maisons individuelles depuis 50 ans
dans tout le sud-ouest de la France

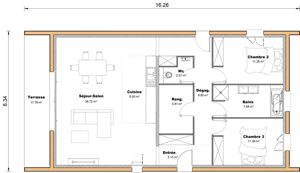
Effacez les frontières entre votre salon et votre jardin avec ce modèle conçu pour vous offrir un quotidien baigné de lumière naturelle. Profitez d’un espace de vie qui se prolonge naturellement vers l’extérieur.
Besoin de plus d’espace ? Découvrez la version 122 m² offrant des volumes encore plus spacieux pour toute la famille. Voir le modèle 122 m².
Optez pour une maison encore plus naturelle et performante avec la version ossature bois. Voir la version bois.
L’ensemble de nos modèles de maison sont entièrement personnalisables et peuvent s’adapter à toutes les familles et toutes les envies.
Surface Habitable
Chambres
Salles de bain
Etage
Garage
Terasse
Cellier
Depuis 50 ans, nous vous accompagnons de A à Z dans vos projets de vie dans le Sud-Ouest de la France.
Protection complète pendant 10 ans
Un savoir-faire reconnu depuis 1975
13 agences dans le Sud-Ouest
Chaque maison est unique