A moins de 10 minutes de Nerac, sur la commune de Calignac, village paisible avec école, Maisons sic vous propose cette belle et grande villa en ossature bois de 106 m2.
Avec ses volumes généreux et ses courbes de villa arcachonnaise, vous ne pouvez qu’être séduits!
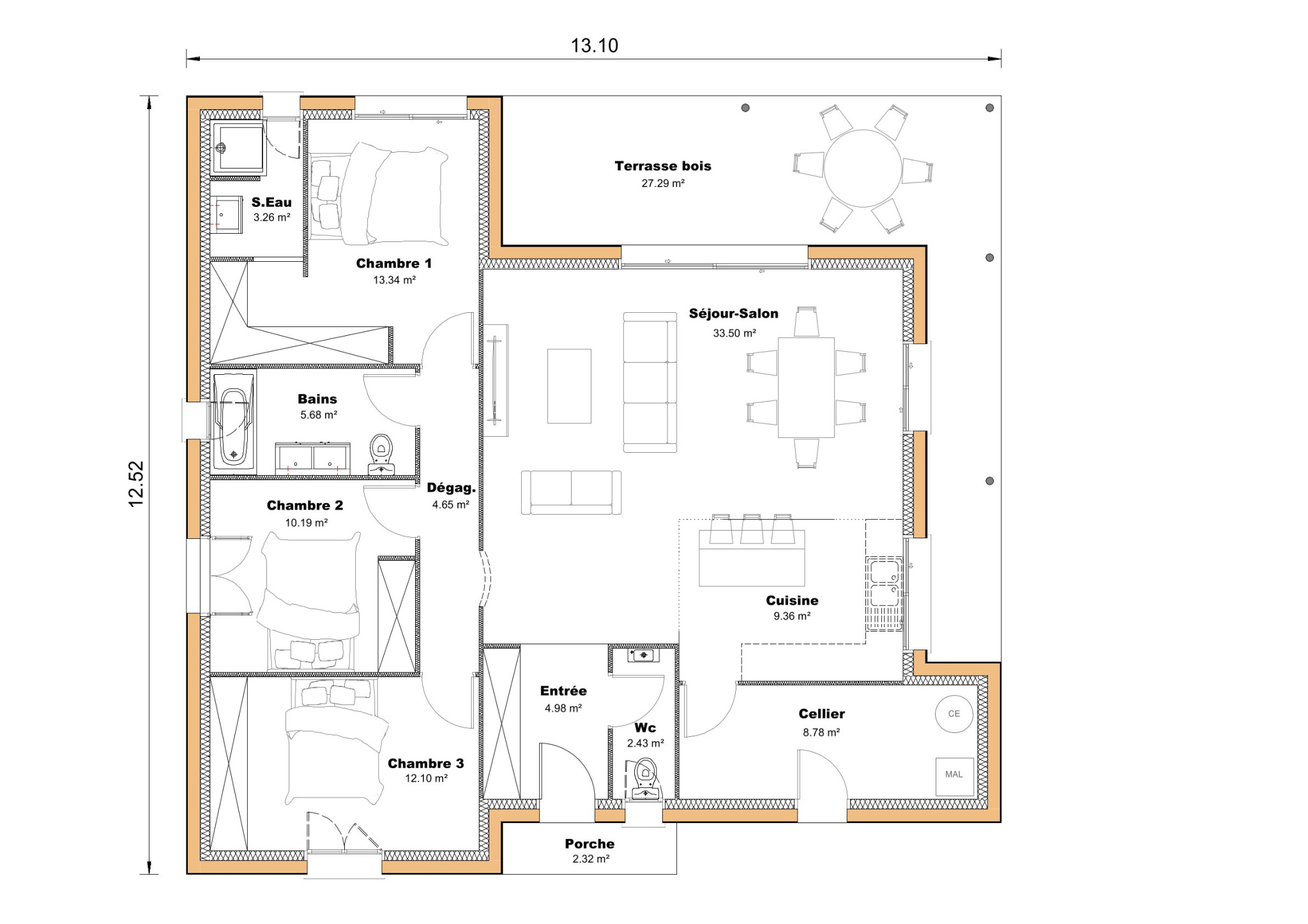
Après une entrée fonctionnelle avec ses rangements et son toilette séparé, découvrez sa pièce de vie inondée de lumière: 42 m2 de pièce de vie ainsi qu’un grand cellier allient fonctionnalité et espaces épurés.
Le coin nuit se situe sur l’aile de la villa et se compose de trois grandes chambres dont une suite parentale avec sa salle d’eau.
Pour finir, une salle de bain avec Wc vient couronner le tout.
La maison est alimentée par un chauffage par gainable, permettant de chauffer et de climatiser chaque pièce indépendamment, pour un confort de vie optimum.
Volets roulants électriques partout.
Le tout implanté sur un terrain de 1892 m2, laissant la possibilité à vos désirs de piscine ou de soirée entre amis de voir le jour.
Maison entièrement personnalisable.
Maison certifiée Re 2020 avec assurance dommage ouvrage incluse.
L’ensemble du projet comprend la maison (prête à décorer), le terrain, les coûts d’adaptation au sol et les coûts liés au raccordement des différents réseaux techniques ainsi que l’assainissement individuel s’élève au prix de 306 800 Eur.
Exemple d’enveloppe budgétaire pour la réalisation d’une Maison Sic prête à décorer, tous frais compris hors frais annexes (financier et notaire).
Photo non contractuelleTerrain vendu par son propriétaire sans entremise du constructeur Maisons sic.
Pour tous renseignements contactez Cyril Martinelli au 06 15 39 92 99.







