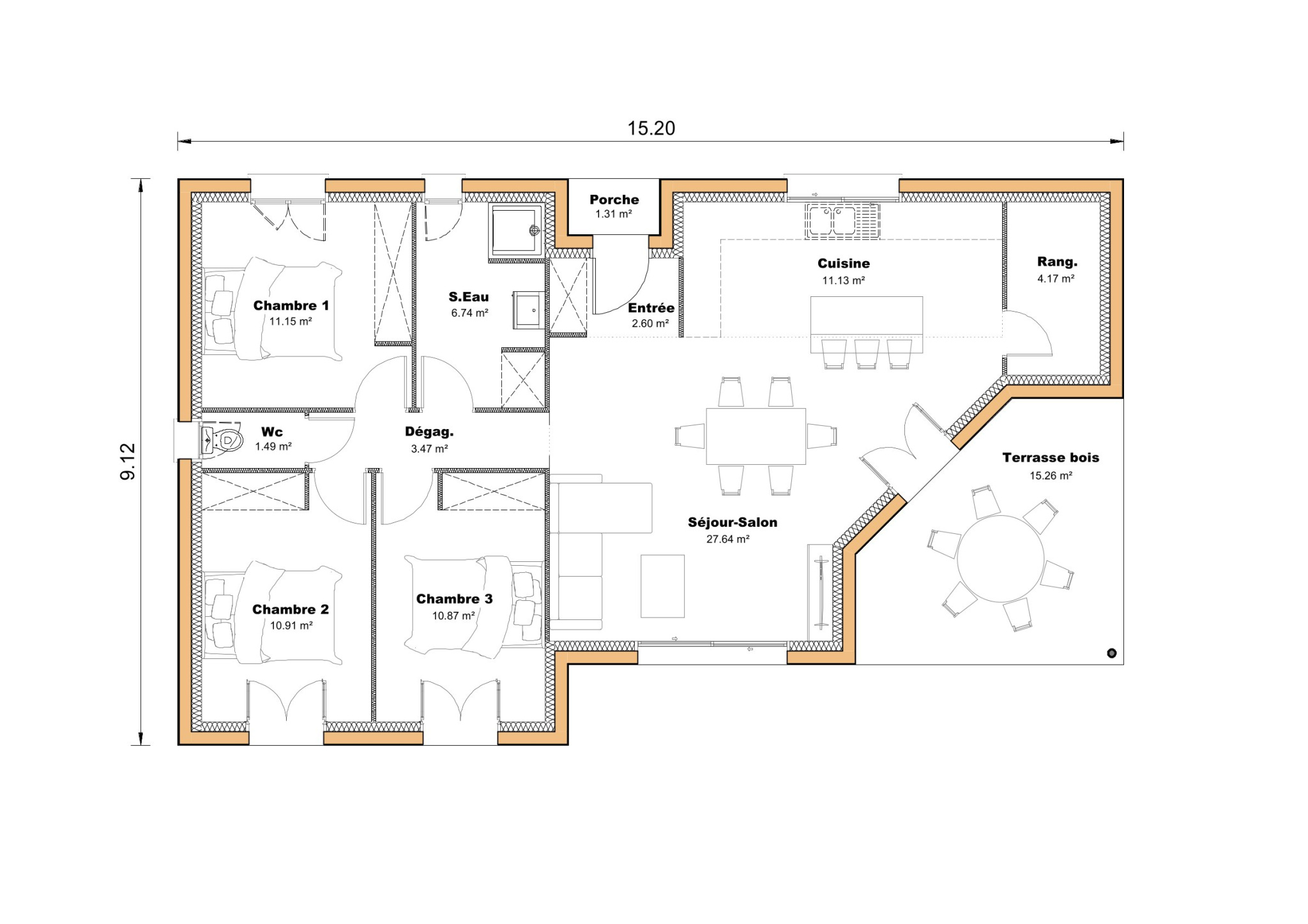
A Laugnac dans un écoquartier idéalement situé, Maisons sic vous propose cette belle maison de 90 m2.
Elle se compose d’un porche d’entrée, d’un sas avec rangements, d’une belle pièce de vie de plus de 40 m2 avec cellier et donnant sur une agréable et fonctionnelle terrasse couverte.
Le coin nuit et doté de trois chambres avec rangements, d’une sale d’eau avec bac extra-plat, meuble vasque et sèche serviettes et Wc séparé.
Le chauffage est assuré par une climatisation réversible dans la pièce de vie et par des radiateurs dans les chambres.
Volets roulants électriques partout.
Le tout sur une belle parcelle de 682 m2 viabilisée avec tout à l’égout.
Maison entièrement personnalisable.
Maison certifiée Re 2020 avec assurance dommage ouvrage incluse.
L’ensemble du projet comprend la maison (prête à décorer), le terrain, les coûts d’adaptation au sol et les coûts liés au raccordement des différents réseaux techniques ainsi que le raccordement au tout à l’égout et s’élève au prix de 227 400 Eur.
Exemple d’enveloppe budgétaire pour la réalisation d’une Maison Sic prête à décorer, tous frais compris hors frais annexes (financier et notaire).
Photo non contractuelle Terrain vendu par son propriétaire sans entremise du constructeur Maisons sic.
Pour tous renseignements contactez Cyril Martinelli au 06 15 39 92 99.




