Constructeur de maisons individuelles depuis 50 ans

dans tout le sud-ouest de la France

Vente maison à Moncaut (47310) de 125 m2 habitable sur terrain de 1349 m2

Je souhaite plus d'informations sur cette annonce

Détails

358 075 €

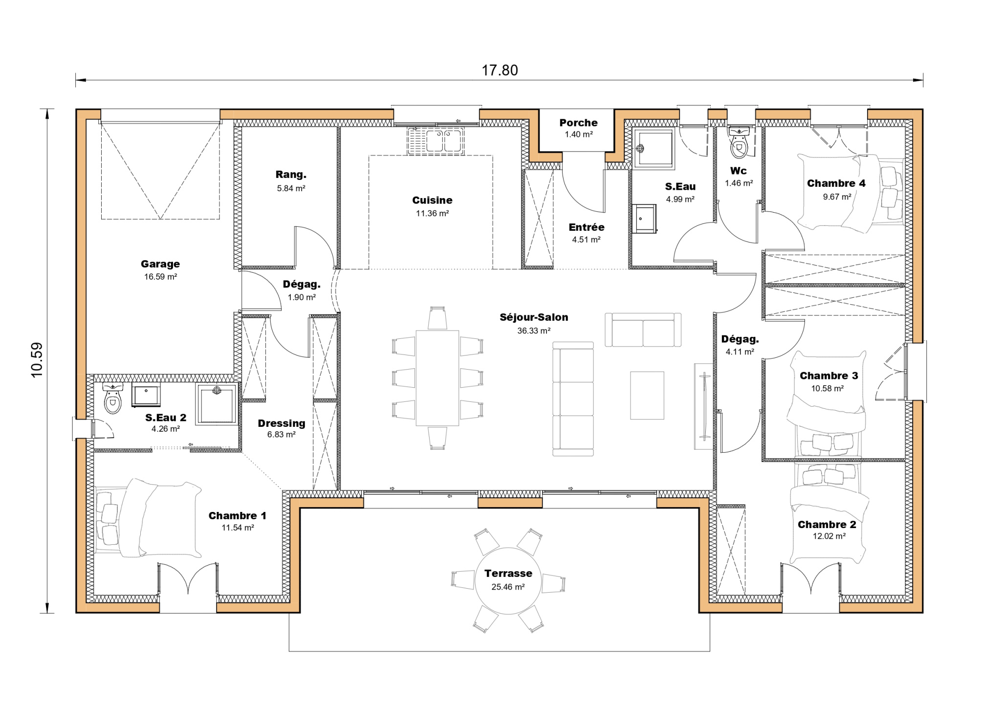
Moncaut, à moins de 10mn de la Technopôle et de l’Agropôle, les maisons Sic vous propose sur ce terrain de 1349 m2 viabilisé dans un charmant petit lotissement de village, le projet de construction de cette belle villa familiale en forme de U d’une superficie habitable de 125 m2.

Elle profite d’une belle luminosité et d’un confort exceptionnelle dû à ses matériaux de construction.

Elle offre également de nombreux rangements, un vaste garage, de 4 chambres dont une suite parentale et d’une belle terrasse carrelée de 25 m2.

Son chauffage est assuré par une pompe à chaleur.

Maison entièrement personnalisable.

Installez vous sur cette grande terrasse et profitez du moment présent.

Maison certifiée Re 2020 avec assurance dommage ouvrage incluse.

Une étude sol G2 sera réalisée.

Comme des milliers de famille depuis 52 ans maintenant, faites confiance au plus vieux constructeur de maisons individuelles en Lot et Garonne pour votre futur projet de construction.

L’ensemble du projet comprend la maison (prête à décorer), le terrain, les couts d’adaptation au sol et les couts liés au raccordement des différents réseaux techniques s’élève au prix de 358 075 €.

Exemple d’enveloppe budgétaire pour la réalisation d’une Maison Sic prête à décorer, tous frais compris hors frais annexes (financier et notaire).

Photo non contractuelle Terrain d’une valeur de 92 684 € vendu directement par son propriétaire, à contacter par vous et sans entremise du constructeur MAISONS Sic.

Contactez Cyril Martinelli au 05 53 66 32 65 pour plus d’informations.

Caractéristiques

Lieu

Moncaut
47310

Retrouvez d'autres maisons dans le département 47