Terrain rare sur le secteur Maison neuve à construire Terrain de 528 m2, plat et rectangle.
Idéalement situé sur la charmante commune de Noé pour profiter du calme de la campagne à deux pas de toutes les commodités et de l’autoroute pour un accès rapide à Muret et Toulouse, que Maisons Sic vous présente grâce à l’un de nos partenaires fonciers.
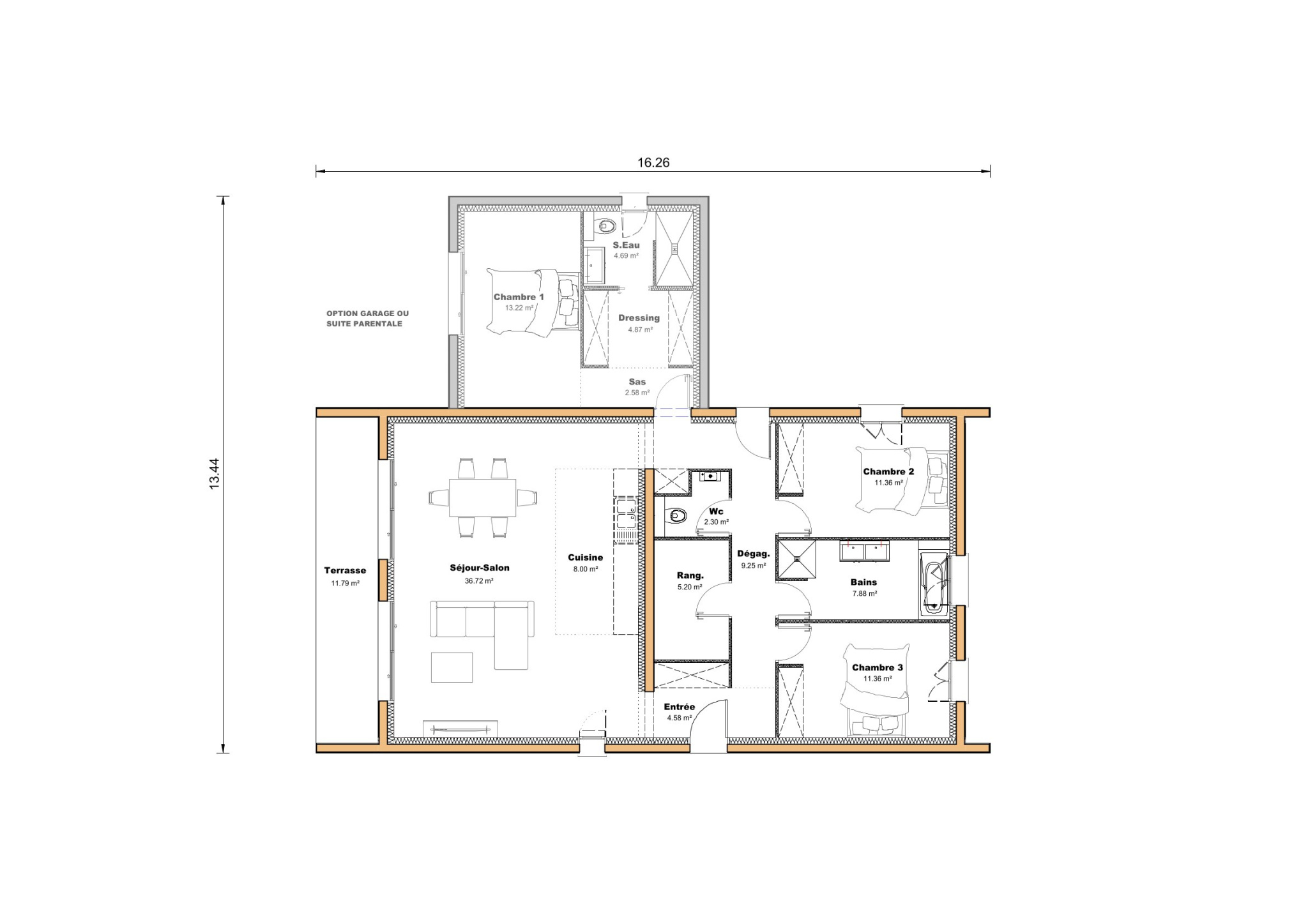
Vous pourrez, par exemple, y faire construire une maison bois de plain pied de 96 m2 agencée comme suit: terrasse de 12m2, entrée avec rangement, espace de vie de 37m2, ouvert sur une cuisine de 8m2, salle de bains équipée, deux jolies chambres de 11m2 avec rangement, un cellier de 5m2 et une superbe suite parentale de 25m2 en option (chauffage gainable, prestations de qualité).
Pour un prix de 302 778 euros (frais de notaire et branchements Compris).
Maisons Sic, présent depuis plus de 50 ans dans la construction de maison individuelle, vous propose un accompagnement total pour votre projet de vie.
faites le choix d’une maison en ossature bois pour une qualité de vie exceptionnelle (norme RE2020).
Plan personnalisable et prestations ajustable à toute vos envies!
Renseignements auprès de Julie Negol-Maisons Sic agence de Noé au O6 75 09 50 67.
Cette annonce concerne un terrain vendu au prix de 88 000 euros, une maison vendue au prix de 190 000 euros (hors finitions) aux normes RE2020; les frais de notaire s’élèvent à 7 878 euros + 16 900 euros de frais annexes (taxe d’aménagement, terrassement, raccordement.
).
Ce terrain est vendu directement par un partenaire sans entremise du constructeur Maisons Sic.
.








