Votre projet de vie familial à Penne d’Agenais: 112 m2 de confort sur 2 500 m2 de terrainIdéalement situé sur la commune prisée de Penne d’Agenais, profitez d’un cadre champêtre exceptionnel sur une vaste parcelle de 2 500 m2.
Ce projet est parfaitement conçu pour les familles recherchant de l’espace, de la modernité et de la sérénité.
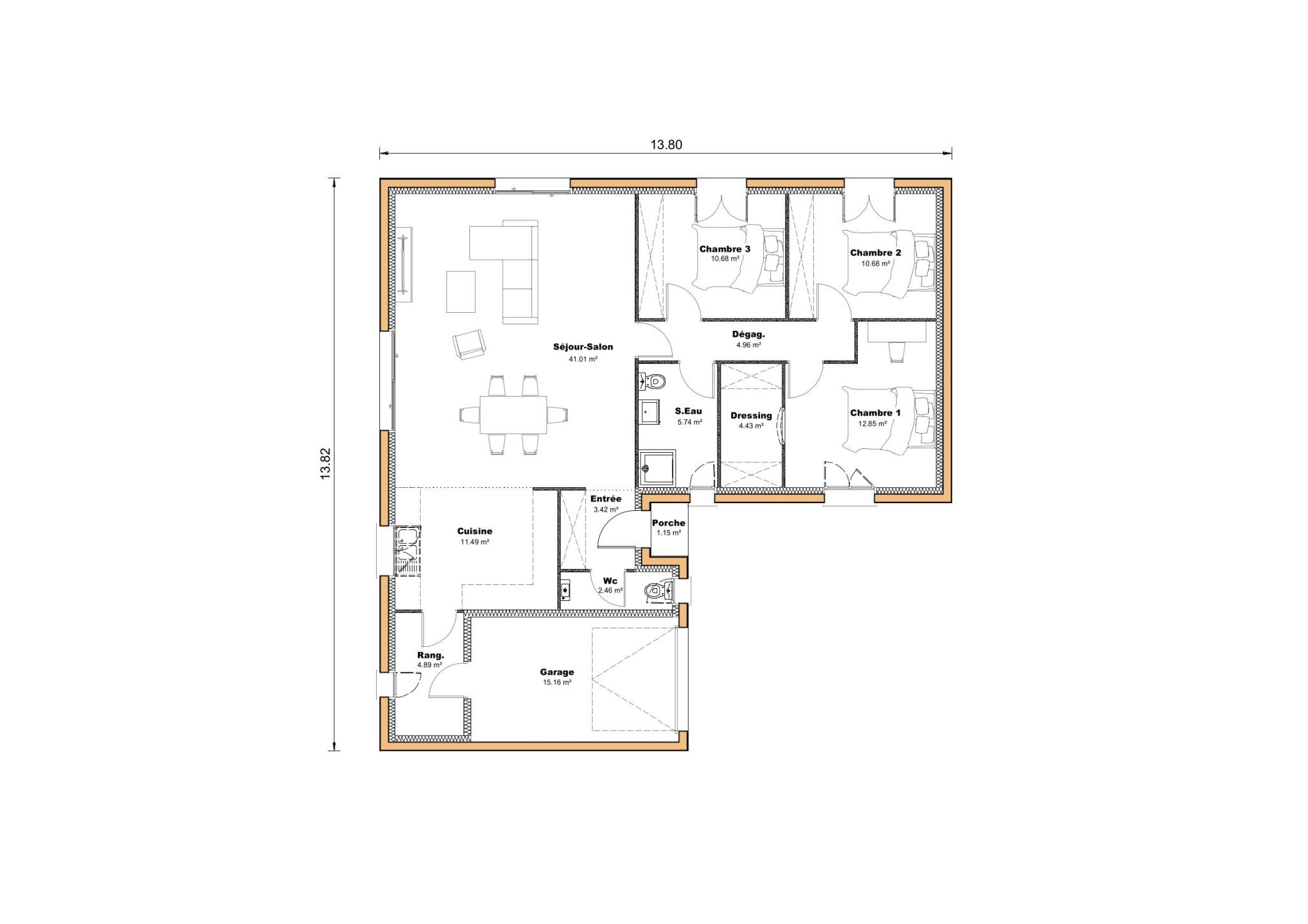
Nous vous proposons la construction du modèle Performance 13, une villa en L offrant des prestations de qualité et une distribution optimisée: Espace de vie d’exception: Une pièce de réception d’environ 50 m2 avec cuisine ouverte, baignée de lumière naturelle.
Espace nuit: 3 chambres spacieuses pour accueillir confortablement toute la famille.
Confort & Rangement: Un garage intégré pour votre véhicule et vos besoins de stockage.
Surface habitable: 112 m2 parfaitement agencés pour supprimer toute perte de place.
Coût total du projet: 278 900 € (Inclus: Terrain, construction de la maison livrée prête à décorer et frais annexes.
Hors taxes d’aménagement).
Faites le choix d’une maison performante et économe en énergie pour votre futur foyer.
Pour plus d informations contacter votre conseiller maisons Sic Nicolas Aznar au O5 53 70 68 82 Terrain vendu directement par notre partenaire foncier sans entremise du constructeur.
Visuel non contractuel.
.








