A sos, dans un village tous commerces de l’Albret et aux portes des Landes et du Gers Maisons sic vous propose sa toute dernière nouveauté, le modèle Primo.
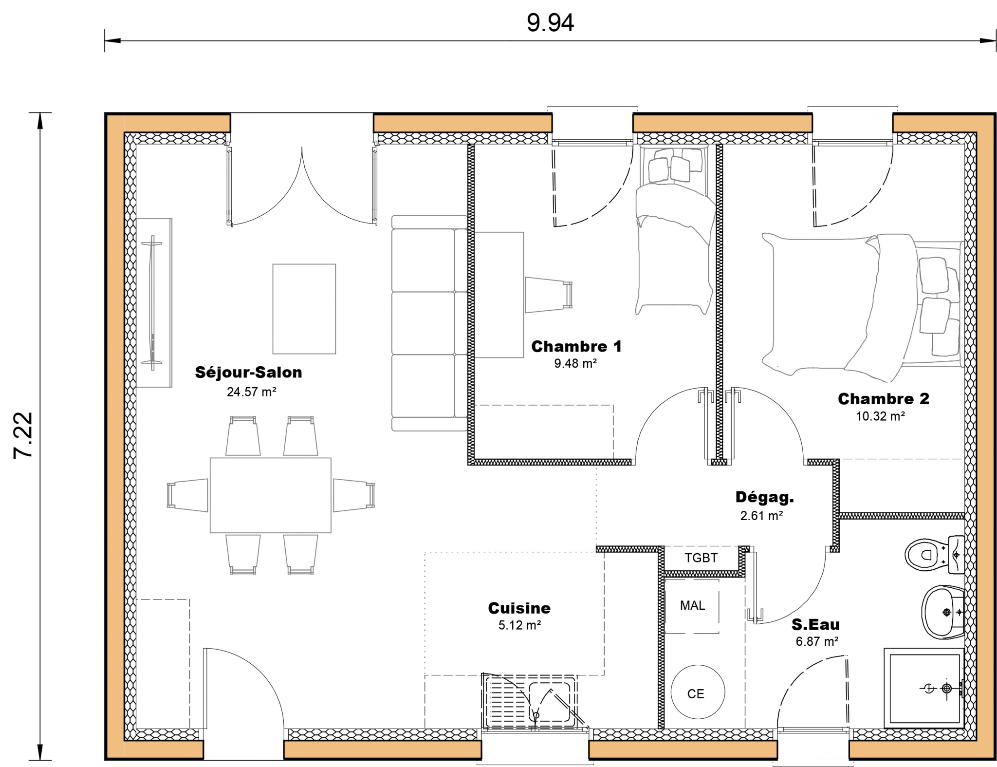
Optimisé, il est composé d’une pièce de vie de 30 m2 avec cuisine ouverte, de deux chambres et d’une salle d’eau avec douche, vasque et Wc.
Le tout sur parcelle de 1461 m2, idéal primo accédant, retraité ou investisseurs.
Le chauffage est assuré par une climatisation réversible dans la pièce de vie et par des radiateurs dans les chambres.
Volets roulants électriques partout.
Maison entièrement personnalisable.
Maison certifiée Re 2020 avec assurance dommage ouvrage incluse.
L’ensemble du projet comprend la maison (prête à décorer), le terrain, les coûts d’adaptation au sol et les coûts liés au raccordement des différents réseaux techniques ainsi que le raccordement au tout à l’égout et s’élève au prix de 150 700 Eur.
Exemple d’enveloppe budgétaire pour la réalisation d’une Maison Sic prête à décorer, tous frais compris hors frais annexes (financier et notaire).
Photo non contractuelle Terrain vendu directement par son propriétaire sans entremise de la part des Maisons sic.
Pour tous renseignements contactez Cyril Martinelli au 06 15 39 92 99.



