Constructeur de maisons individuelles depuis 50 ans

dans tout le sud-ouest de la France

Constructeur de maisons individuelles depuis 50 ans

dans tout le sud-ouest de la France

Vente maison à St pierre d aurillac (33490) de 102 m2 habitable sur terrain de 520 m2

Je souhaite plus d'informations sur cette annonce

Détails

269 000 €

Sur la commune de Saint pierre d’Aurillac, à proximité immédiate des commodités, découvrez ce projet complet terrain et maison dans un cadre de vie agréable.

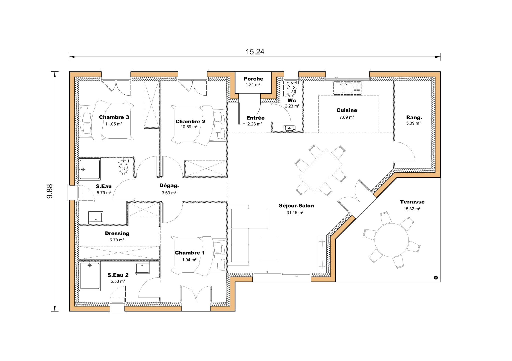
Le projet comprend la construction du modèle Performance 04 Mob, maison ossature bois de 102 m2 habitables avec terrasse couverte de 15 m2.

La maison propose une grande pièce de vie lumineuse ouverte et conviviale, un cellier attenant à la cuisine, un Wc séparé et une salle d’eau complète.

La partie nuit comprend 3 chambres avec rangements intégrés, offrant confort etfonctionnalité au quotidien.

Les plans sont entièrement personnalisables selon vos besoins etenvies, permettant d’adapter l’agencement, les surfaces et les ouvertures pour créer unemaison qui vous ressemble.

La maison est équipée d’un système de chauffage performant avec climatisation réversible, Le carrelage est prévu dans toutes les pièces et la salle d’eau est entièrement aménagée pourun confort optimal.

Une offre spéciale de 2 500 € est incluse à valoir sur une cuisine de notre showroom pour compléter votre projet.

Le prix global du projet est de 269 000 €, incluant-le terrain+frais annexes- la maison- les frais de notaire Terrain vendu directement par son propriétaire sans entremise de la part des Maisons SICLes informations sur les risques auxquels ce bien est exposé sont disponibles sur le site Georisques www.

georisques.

gouv.

fr Projet suivi par votre conseiller commercial Maisons SICYoan FAUCHERO556632O72.

Caractéristiques

Lieu

St pierre d aurillac
33490