Maison neuve 102 m2-Modèle Performance 5-Terrain 642 m2 à Saint-Sylvestre-sur-Lot.
Maisons Sic, votre constructeur de confiance depuis 1972, vous présente ce nouveau projet de construction idéalement situé à Saint-Sylvestre-sur-Lot.
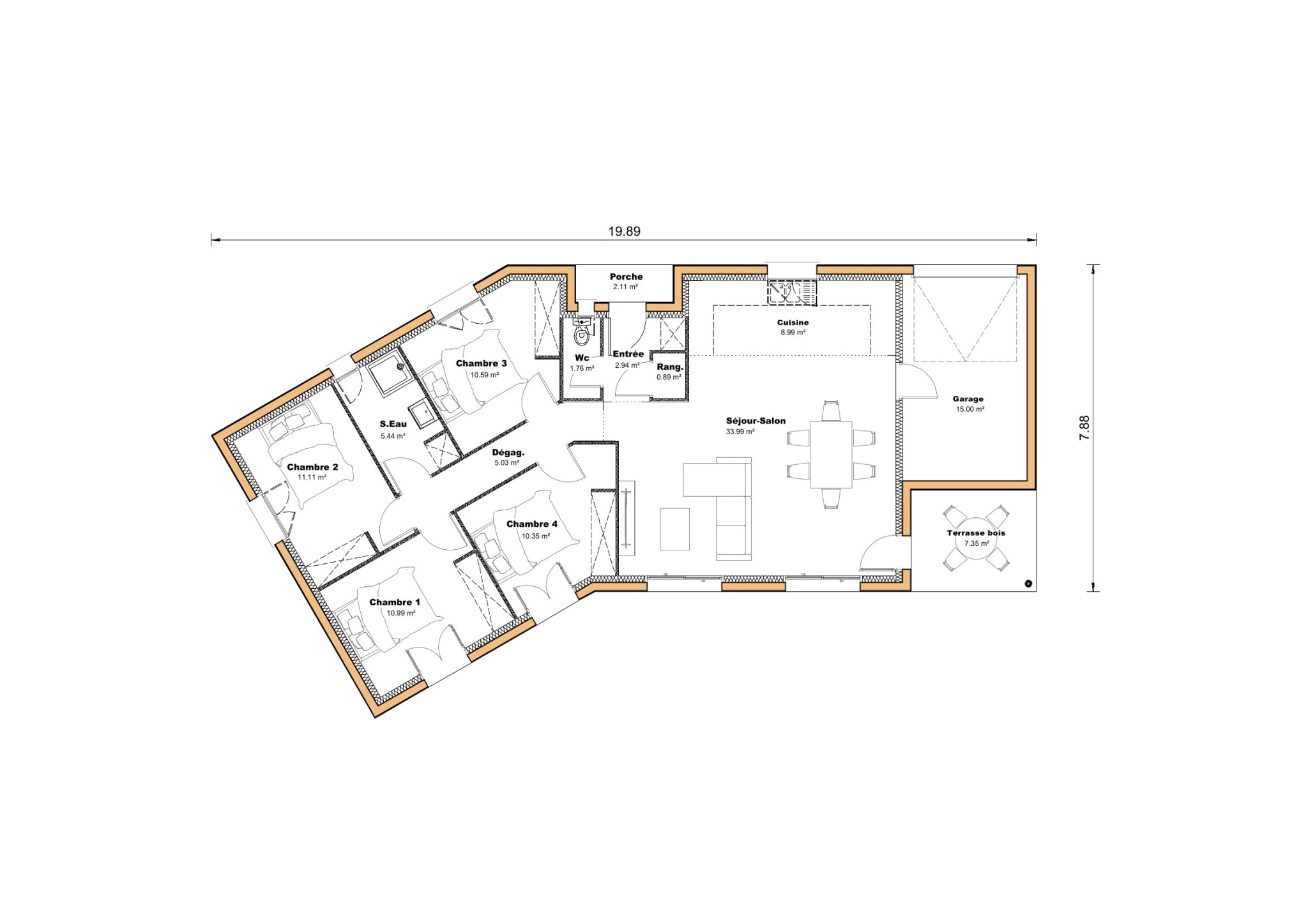
Le Modèle Performance 5: Espace et Convivialité Cette maison de 102 m2 a été optimisée pour offrir un maximum de confort à toute la famille: Espace de vie: Un hall d’entrée accueillant ouvrant sur une vaste pièce de vie lumineuse avec cuisine ouverte.
Côté nuit: 4 chambres spacieuses équipées de placards intégrés pour un rangement optimal.
Extérieur: Une terrasse couverte pour profiter de vos soirées en plein air.
Praticité: Une salle d’eau fonctionnelle et un garage attenant.
Votre projet sur mesureRéalisez votre construction sur une parcelle de 642 m2 au cœur d’un environnement privilégié.
L’investissement global estimé à 242 000 € inclut: Le terrain La construction de la maison (modèle Performance 5) Les Vrd (terrassement et branchements) pour plus d informations contacter votre conseiller maisons Sic Nicolas Aznar au O7 81 76 99 45 Exemple d’enveloppe budgétaire pour la réalisation d’une Maison Sic sur le terrain de l’un de nos partenaires fonciers.
Maison prête à décorer, tous frais compris hors frais annexes (financier et notaire).
Photo non contractuelle.
terrain vendu directement par notre partenaire foncier sans entremise du constructeur.







