Situé dans le charmant village de Sainte-Bazeille, ce projet terrain + maison est une opportunité rare sur le secteur.
Vous bénéficierez d’un cadre de vie agréable, entre tranquillité et proximité des commodités: écoles, commerces, services et accès rapides aux grands axes.
Implanté en seconde ligne, dans un quartier recherché et calme, ce terrain viabilisé accueille un projet de construction idéal pour une vie de famille sereine.
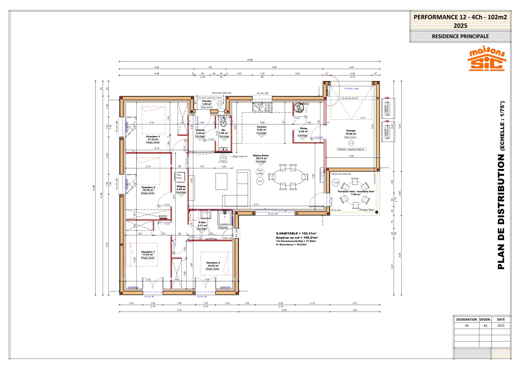
Nous vous proposons le modèle Performance 12, une maison moderne de 102 m2 habitables, comprenant également un garage et une terrasse couverte.
Vous serez séduit par ses beaux volumes, sa luminosité et sa suite parentale confortable, pensée pour votre bien-être au quotidien.
Cette maison respecte les dernières normes en vigueur et est proposée dans une offre complète incluant: le terrain les raccordements les frais de notaire tous les sols une salle de bain entièrement équipée Et en ce moment, profitez d’une offre exceptionnelle: une cuisine d’une valeur de 2 500 € incluse.
Ce projet est proposé par Maisons sic, constructeur reconnu pour la qualité de ses réalisations et son accompagnement personnalisé.
Prix global: 249 965 € Pour plus d’informations ou pour étudier votre projet de construction, contactez-nous dès maintenant.
.







