Sainte colombe en brulhois, dans un secteur privilégié à 2mn de la Technopôle, les maisons Sic vous propose sur ce terrain plat de 1944 m2 dans un environnement calme et paisible avec une belle vue dégagée, ce magnifique projet de construction de cette belle villa en ossature bois de forme originale comportant deux volumes bien distincts séparés et offrant 120 m2 habitables.
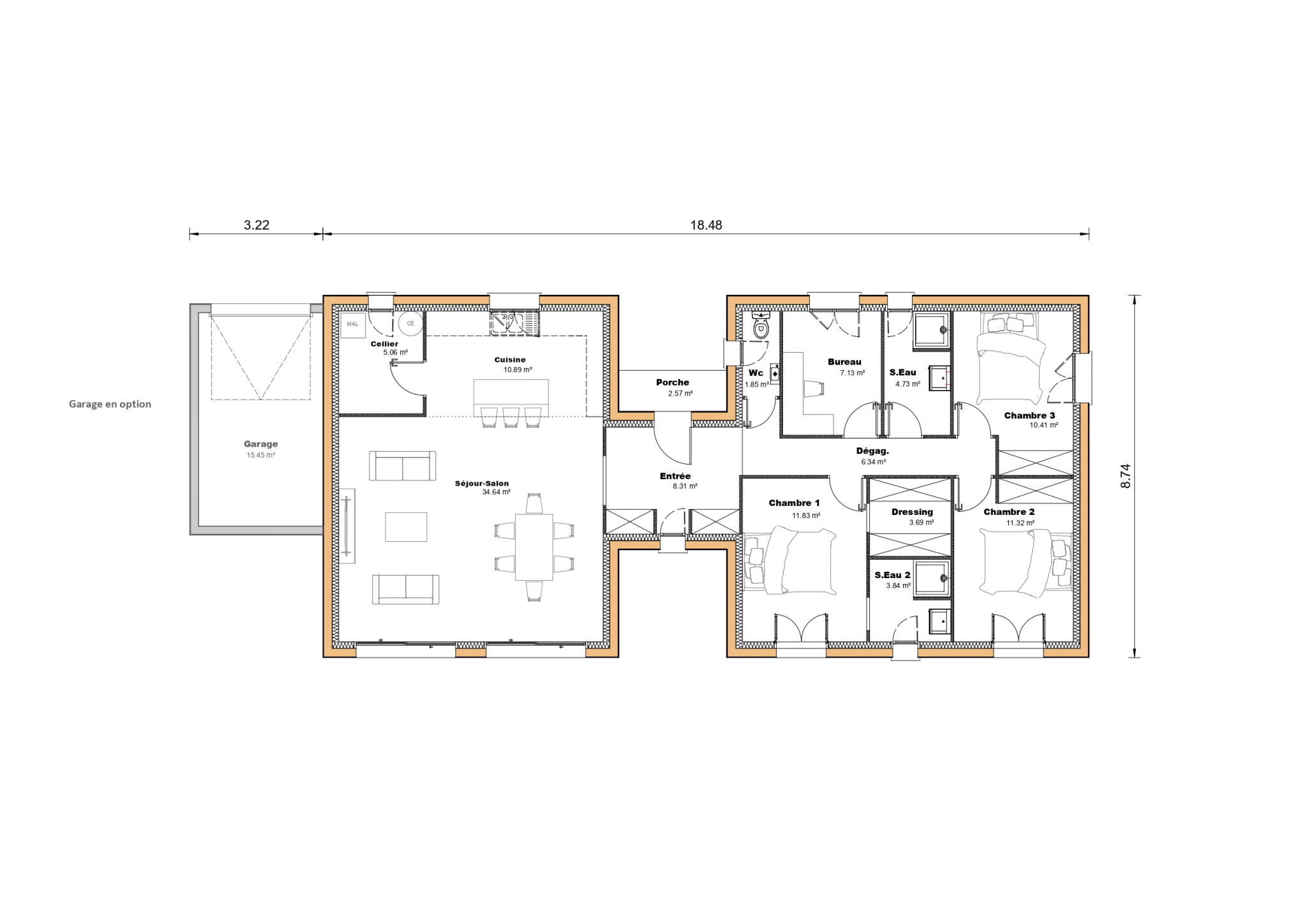
Elle comprend une vaste entrée de plus de 8 m2, d’une belle pièce de vie lumineuse avec ses grandes ouvertures, d’un bureau et de 3 belles chambres dont une suite parentale avec dressing et salle d’eau.
La cuisine dispose d’un cellier donnant accès au garage.
Elle est également équipée de nombreux rangements.
Son chauffage est assuré par une pompe à chaleur.
Maison entièrement personnalisable.
Maison certifiée Re 2020 avec assurance dommage ouvrage incluse.
Une étude de sol G2 sera réalisée Comme des milliers de famille depuis 52 ans maintenant, faites confiance au plus vieux constructeur de maisons individuelles en Lot et Garonne pour votre futur projet de construction.
L’ensemble du projet comprend la maison (prête à décorer), le terrain, les couts d’adaptation au sol, les couts liés au raccordement des différents réseaux techniques et l’assainissement s’élève au prix de 347 200 €.
Exemple d’enveloppe budgétaire pour la réalisation d’une Maison Sic prête à décorer, tous frais compris hors frais annexes (financier et notaire).
Photo non contractuelle Terrain d’une valeur de 80 000 euros vendu directement par son propriétaire, à contacter par vous et sans entremise du constructeur MAISONS Sic.
Contactez Cyril Martinelli au 05 53 66 32 65 pour plus d’informations.








