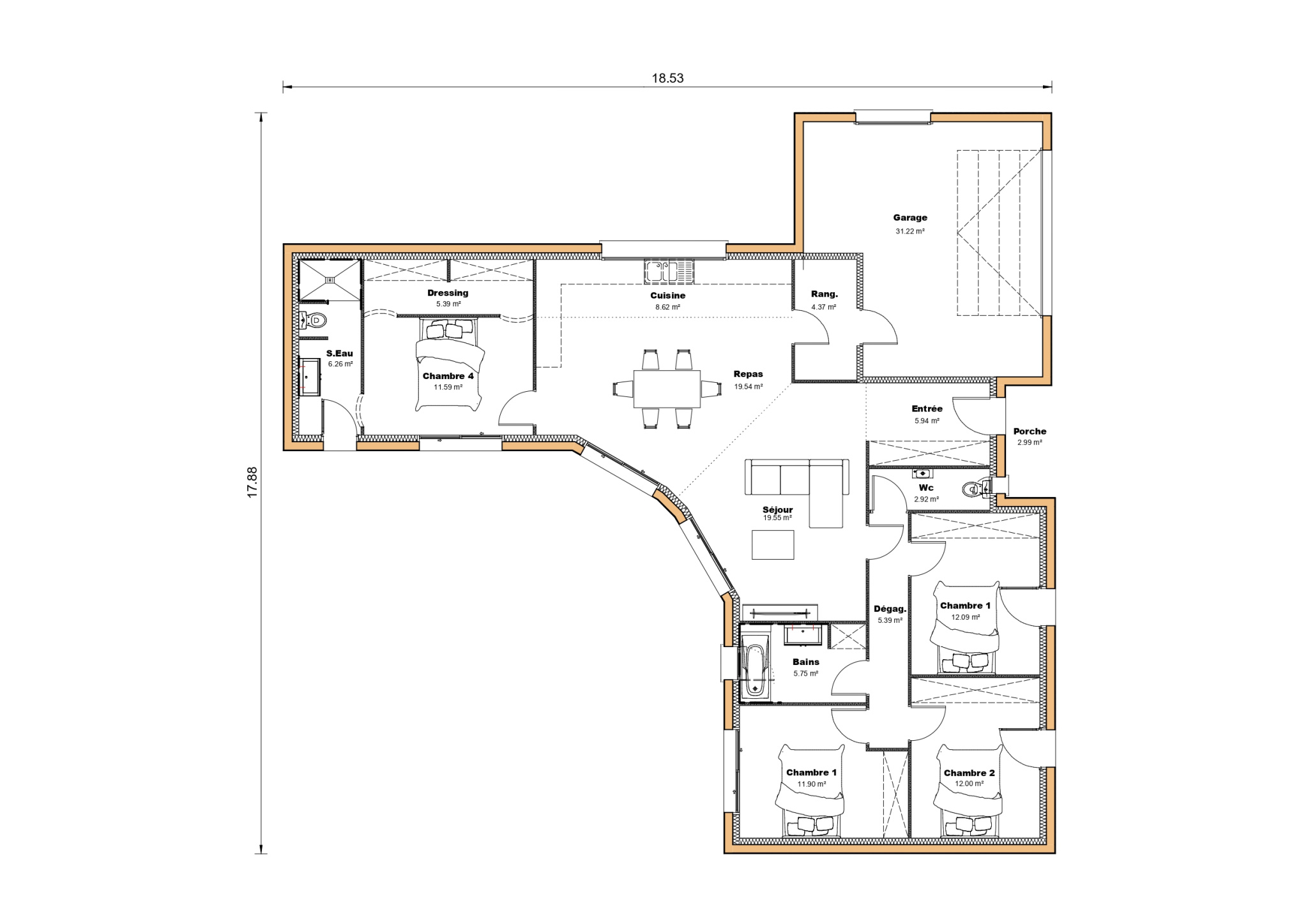
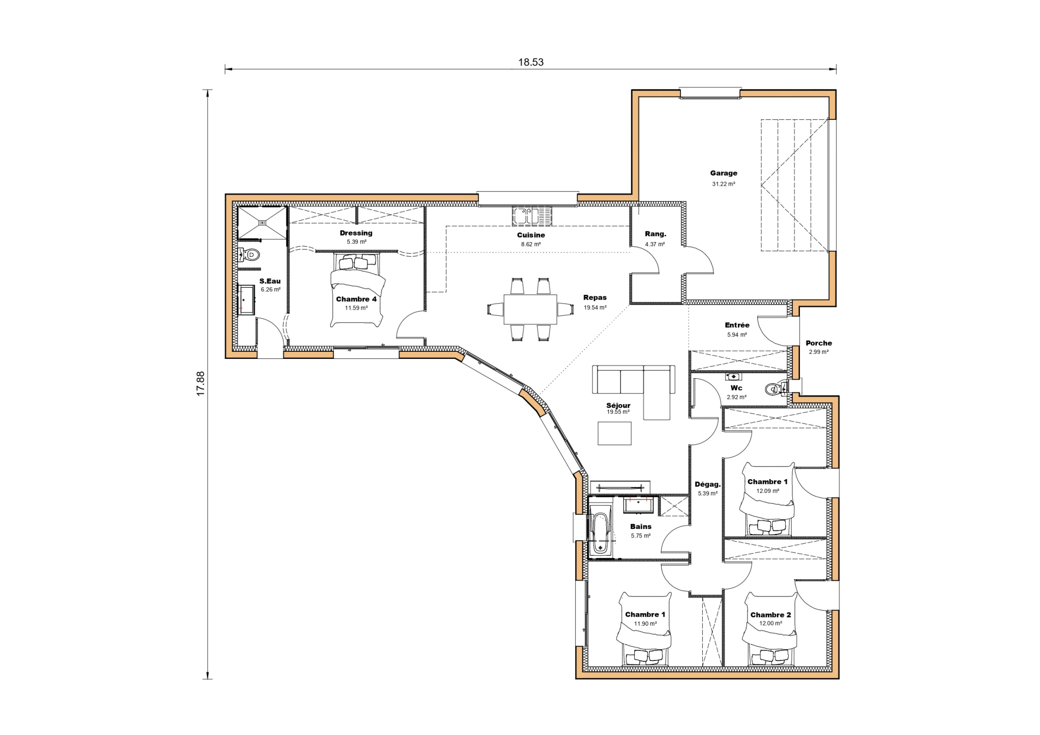
A proximité immédiate de la Technopole agen-Garonne sur le commune de Sainte colombe en brulhois, Maisons sic vous propose cette belle villa ossature bois de 131 m2 habitables.
Elle se compose d’une entrée avec rangements, d’une pièce de vie lumineuse avec cuisine Us, d’une suite parentale avec dressing, salle d’eau et Wc, de trois chambres, d’une salle de bain avec rangements et d’un Wc séparé.
Le tout complété par un grand garage de 31 m2.
Le chauffage est assuré par gainable c’est à dire un système permettant de chauffer ou climatiser chaque pièce de manière indépendante.
Volets roulants électriques partout.
Le tout sur une belle parcelle plate de 848 m2 avec tout à l’égout.
Maison entièrement personnalisable.
Maison certifiée Re 2020 avec assurance dommage ouvrage incluse.
L’ensemble du projet comprend la maison (prête à décorer), le terrain, les frais de notaire, les coûts d’adaptation au sol et les coûts liés au raccordement des différents réseaux techniques ainsi que le raccordement au tout à l’égout et s’élève au prix de 411 469 Eur.
Terrain vendu par son propriétaire sans entremise du constructeur Maisons sic.
Pour tous renseignements contactez Cyril Martinelli au 06 15 39 92 99.









