Maison neuve 120 m2-Modèle Carat-Terrain 1 800 m2 à Villeneuve-sur-LotLes Maisons Sic, constructeur de maisons individuelles depuis 1972, vous proposent de réaliser ce projet de construction alliant confort et modernité.
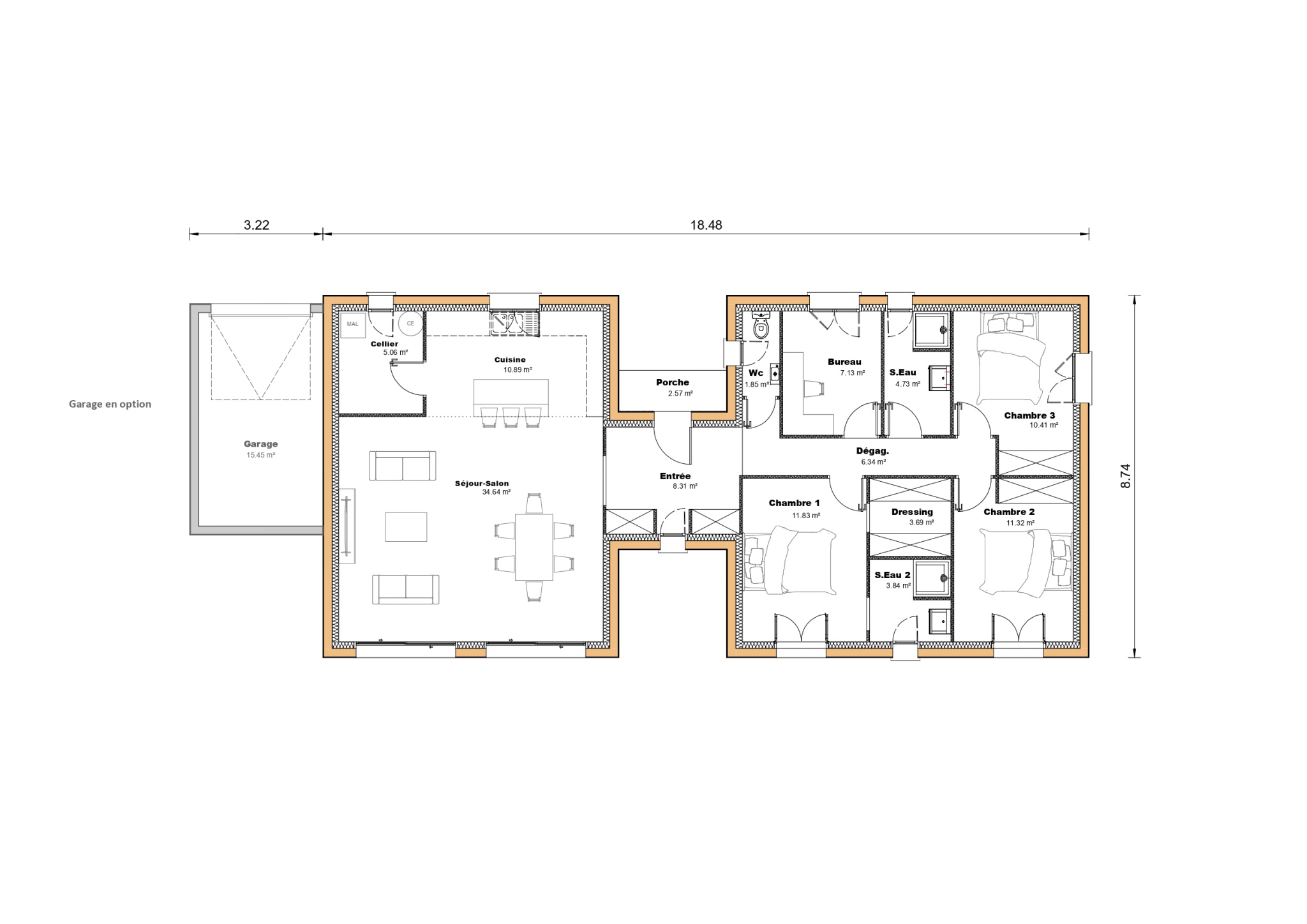
Le Modèle Carat: Espace et FonctionnalitéCette maison aux normes RE2020, d’une surface habitable de 120 m2, a été conçue pour offrir un cadre de vie optimal: Espace de vie: Une cuisine ouverte sur un vaste salon-séjour baigné de lumière.
Côté nuit: 3 chambres spacieuses, dont une suite parentale avec salle d’eau et dressing privatifs, complétées par un bureau et une salle d’eau commune.
Praticité: Un cellier attenant à la cuisine et au garage pour un rangement facilité.
Votre projet sur un terrain d’exceptionProfitez d’une superbe parcelle d’une superficie de 1 800 m2, idéale pour vos aménagements extérieurs.
Le modèle Carat (120 m2), livré prêt à décorer, incluant le terrain, les Vrd (terrassement et branchements) et l’ensemble des garanties constructeur, vous est proposé à partir de 345 000 €.
Le plan est entièrement personnalisable selon vos envies et vos besoins spécifiques.
pour plus d informations contacter votre conseiller maisons Sic Nicolas Aznar au O7 81 76 99 45 Exemple d’enveloppe budgétaire pour la réalisation d’une Maison Sic sur le terrain de l’un de nos partenaires fonciers.
Maison prête à décorer, tous frais compris hors frais annexes (financier et notaire).
Photo non contractuelle.
terrain vendu directement par notre partenaire foncier sans entremise du constructeur.









