
Constructeur de maisons individuelles depuis 50 ans
dans tout le sud-ouest de la France
Constructeur de maisons individuelles depuis 50 ans
dans tout le sud-ouest de la France

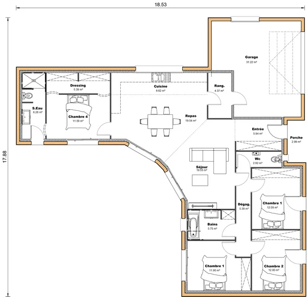
Sortez des codes traditionnels avec cette villa de 131 m² en demi-cercle. Son architecture en arc de cercle est pensée pour offrir une vue panoramique sur votre jardin et une clarté constante dans chaque pièce.
Accentuez le côté organique de cette forme en arc de cercle en choisissant la version ossature bois. Voir la version bois.
L’ensemble de nos modèles de maison sont entièrement personnalisables et peuvent s’adapter à toutes les familles et toutes les envies.
Surface Habitable
Chambres
Salles de bain
Etage
Garage
Terasse
Cellier
Depuis 50 ans, nous vous accompagnons de A à Z dans vos projets de vie dans le Sud-Ouest de la France.
Protection complète pendant 10 ans
Un savoir-faire reconnu depuis 1975
13 agences dans le Sud-Ouest
Chaque maison est unique