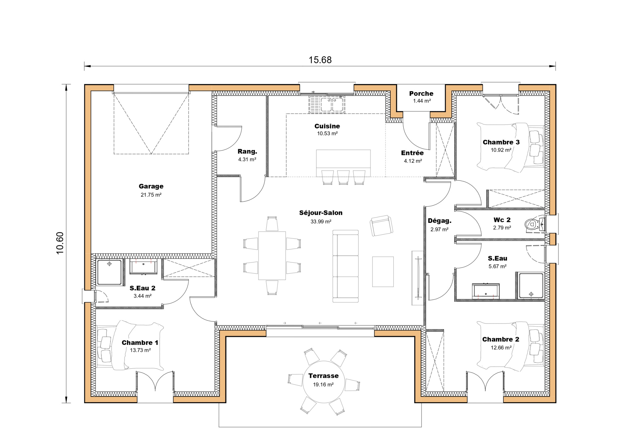
Élégante maison en U de 105m2 habitables plus son garage de 20m2, par Mr Frédéric Couzier conseiller chez Maisons sic, Maison moderne disposant de tout le confort gainable (pompe à chaleur réversible) et de la connectivité actuelle, composée d’un grand et traversant espace central séjour/cuisine de 50m2 lumineux et d’un double et grand coin nuit avec 2 chambres disposant d’espaces rangements, une salle de bain équipée et Wc d’un coté et d’une suite parentale de l’autre, un cellier se jouxte à la cuisine et une belle terrasse vient agrémenter ce modèle innovant.
Bardage en Douglas de qualité issu des forets nordiques.
Un changement de vie dans un cadre exceptionnel, une maison prémium avec peu de dégagements pour une place optimisée, fonctionnelle, belle et pratique proposée par Maisons sic constructeur de maisons individuelles depuis plus d’un demi siècle, Financement: Terrain: 34 000 € (proposé par un partenaire foncier sans entremise de la part de Maisons sic)Frais annexes (Vrd, assainissement): 25 000 €Maison à partir de: 231 000 €Total projet (hors frais de notaires et taxes diverses): 290 000 €Projet de construction prêt à décorer, modifiable selon vos envies et vos besoins, Plusieurs plans et modèles sont à votre disposition dans notre agence Maisons sic à Auch, Pour tous renseignements, contactez Frédéric Couzier un professionnel de l’immobilier à votre écoute, .


