Constructeur de maisons individuelles depuis 50 ans

dans tout le sud-ouest de la France

Constructeur de maisons individuelles depuis 50 ans

dans tout le sud-ouest de la France

Vente maison à Casteljaloux (47700) de 108 m2 habitable sur terrain de 1000 m2

Je souhaite plus d'informations sur cette annonce

Détails

256 333 €

À quelques minutes de Casteljaloux, dans un environnement campagne calme et arboré, découvrez ce projet terrain + maison modèle LongÈRe de 108 m2, idéal pour une vie confortable et moderne.

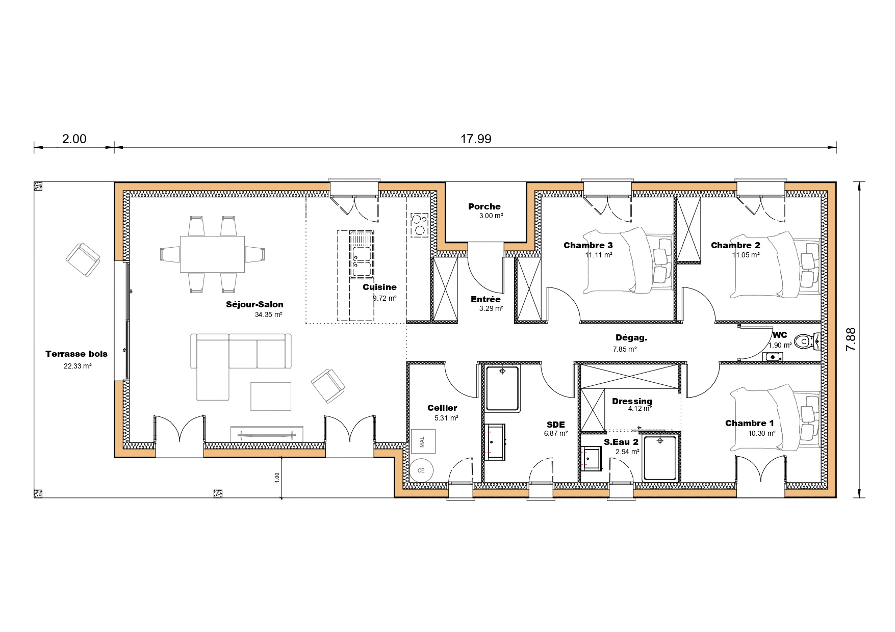
?? La maison Modèle LongÈRe 108 m2 3 chambres dont une suite parentale avec salle d’eau privative Grande pièce de vie lumineuse avec cuisine ouverte Accès direct à une terrasse couverte de 22 m2, idéale pour vos repas en extérieur Salle de bain familiale Wc indépendant Cellier / espace technique Architecture élégante et intemporelle ? Prestations de qualité: Chauffage gainable dernière génération (confort optimal été comme hiver) Volets roulants électriques sur l’ensemble de la maison Menuiseries performantes Construction conforme aux dernières normes Re2020 (économies d’énergie et confort thermique) Maison personnalisable selon vos envies ??? Les garanties Maisons sic: Garantie décennale Garantie de parfait achèvement Garantie biennale Garantie de livraison à prix et délais convenus Assurance dommages-ouvrage Accompagnement personnalisé de l’étude à la remise des clés ?? Le terrain 1 000 m2 Plat et bien exposé Cadre campagne agréable et verdoyant Environnement résidentiel calme À seulement quelques minutes des commodités ?? Casteljaloux, station thermale dynamique du Lot-et-Garonne, offre: Commerces et grandes surfaces Écoles et collège Services médicaux Marché hebdomadaire Lac de Clarens et base de loisirs Golf 18 trous, casino, cinéma Accès rapide vers Marmande et l’autoroute A62 Vous profitez ainsi d’un cadre de vie paisible tout en restant proche de tout.

?? Prix global du projet: 256 333 € Ce prix comprend: ?? Le terrain?? Les frais de notaire?? Les raccordements?? La maison prête à décorer ?? Renseignements et étude personnalisée: Camille Simon 06 59 47 39 86 Projet personnalisable selon votre budget et vos envies.

Visuels non contractuels.

.

Caractéristiques

Lieu

Casteljaloux
47700

Retrouvez d'autres maisons dans le département 47