À Dolmayrac, saisissez l’opportunité de construire une maison à ossature bois (Mob), alliant performance thermique et charme naturel.
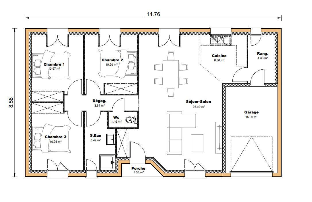
Ce projet de 90 m2 habitables, livré prêt à décorer, a été conçu pour offrir un cadre de vie sain et chaleureux.
Les caractéristiques du projet: Espace à vivre: Une pièce de vie baignée de lumière avec cuisine ouverte, idéale pour vos moments de partage.
Côté nuit: 3 chambres confortables, une salle d’eau moderne et des Wc indépendants.
Praticité: Un garage intégré pour faciliter votre quotidien.
Extérieur: Un terrain d’environ 1 100 m2, sélectionné auprès de notre partenaire foncier dans un environnement privilégié.
Budget Terrain + Maison: à partir de 236 000 € (Tarif indicatif pouvant varier selon les options de finitions et les prestations choisies).
Terrain vendu directement par notre partenaire foncier sans entremise du constructeur.
Pour plus d informations contacter votre conseiller maisons Sic Nicolas Aznar au O7 81 76 99 45.








