A Dolmayrac (47110) Sur un terrain de 1200m2 en campagne, maisons Sic, constructeur de maisons individuelles dans le Sud-Ouest depuis 1972, vous propose ce projet de construction.
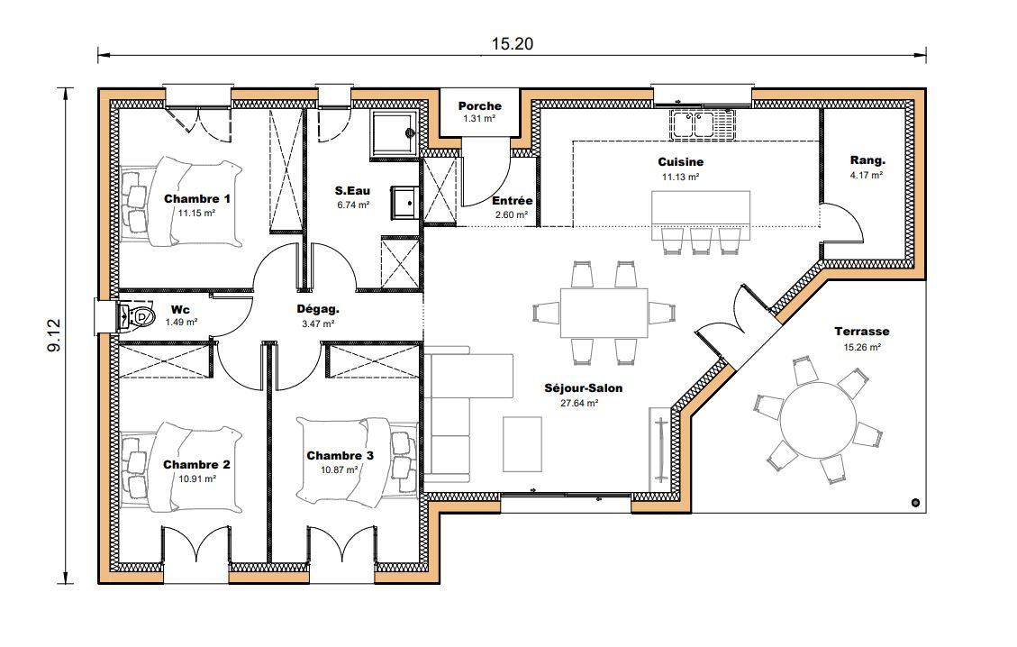
Maison de 90 m2, composée de 3 chambres + terrasse couverte.
Cette maison aux lignes esthétiques, a été pensée dans l’optique d’optimiser la convivialité et les performances énergétique, tout en conservant la grande qualité de nos constructions si importante pour nous.
Ce projet comprenant la maison, le terrain, les raccordements, les frais de notaires et taxe d’aménagement nécessite un budget de 223 000€ Il est tout à fait possible d’envisager un projet constructif différent sur ce terrain.
Pour plus d’informations et/ou pour une étude personnalisée et gratuite de votre projet, consultez votre conseiller Nicolas Aznar.
Non mandaté pour réaliser la vente du terrain.
.








