Sur la commune de Duras 47120 dans le Lot et Garonne, découvrez ce projet complet terrain et maison situé dans un quartier calme et pavillonnaire proche des commodités du village avec son château, ses commerces et son marché local Le terrain de 1 033 m2 offre une belle vue dégagée sur les coteaux environnants et est facilement aménageable pour accueillir une construction.
Le projet inclut le raccordement au tout à l’égout et tous les frais de notaire sont inclus dans le prix.
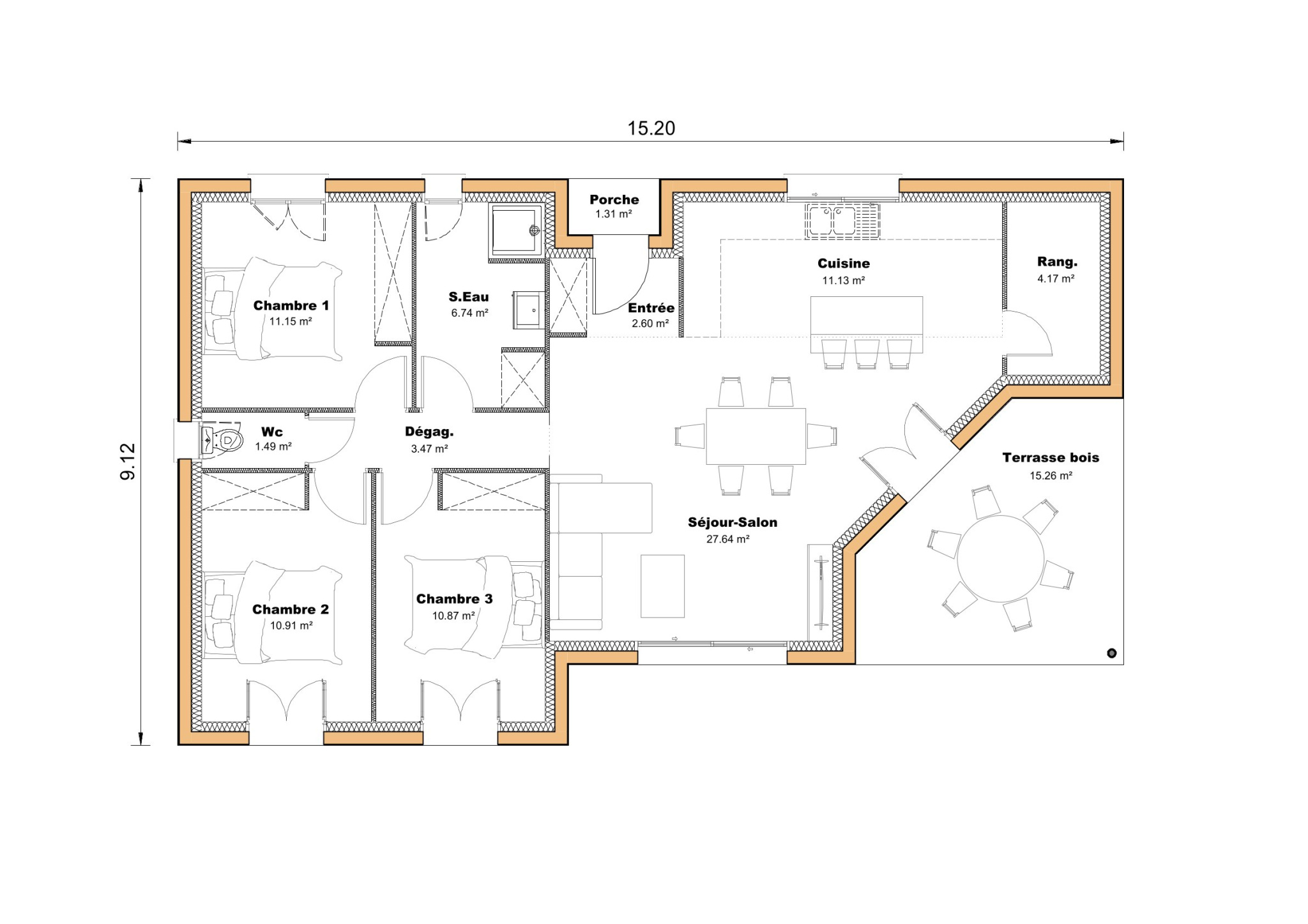
Le projet comprend la construction du modèle Performance 04, maison contemporaine de 90 m2 habitables avec une grande terrasse couverte de 15 m2.
La maison propose une grande pièce de vie lumineuse, ouverte et conviviale, un cellier attenant à la cuisine, un wc séparé et une salle d’eau complète.
La partie nuit comprend trois chambres avec rangements intégrés et des prestations modernes pour un confort optimal.
Le plan est entièrement personnalisable selon vos besoins et vos envies afin de créer une maison parfaitement adaptée à votre mode de vie.
La maison est équipée d’un système de chauffage performant avec climatisation réversible et plancher chauffant dans les chambres.
Le carrelage est prévu dans toutes les pièces et la salle d’eau est entièrement aménagée.
Une offre spéciale de 2 500 € est incluse à valoir sur une cuisine de notre showroom pour compléter votre projet.
Le prix global du projet est de 216 151 €, incluant-le terrain-la maison-les frais de notaire-les raccordements Terrain vendu directement par son propriétaire sans entremise de la part des Maisons sic Les informations sur les risques auxquels ce bien est exposé sont disponibles sur le site Georisques www.
georisques.
gouv.
fr Projet proposé et suivi par votre conseillèreCamille Simon 06 59 47 39 86.








