Entre Villeneuve et Bergerac: Votre Havre de Paix Familial à LalandusseVous travaillez à Villeneuve-sur-Lot ou Bergerac et vous rêvez de déconnecter après votre journée ? Ne choisissez plus entre proximité professionnelle et sérénité absolue.
Situé à Lalandusse, ce projet de construction vous offre un cadre de vie exceptionnel sur un vaste terrain de 1 525 m2.
À mi-chemin entre ces deux pôles économiques, vous profitez du calme de la campagne sans sacrifier votre temps de trajet.
C’est l’emplacement idéal pour une famille cherchant à s’installer durablement dans un environnement préservé.
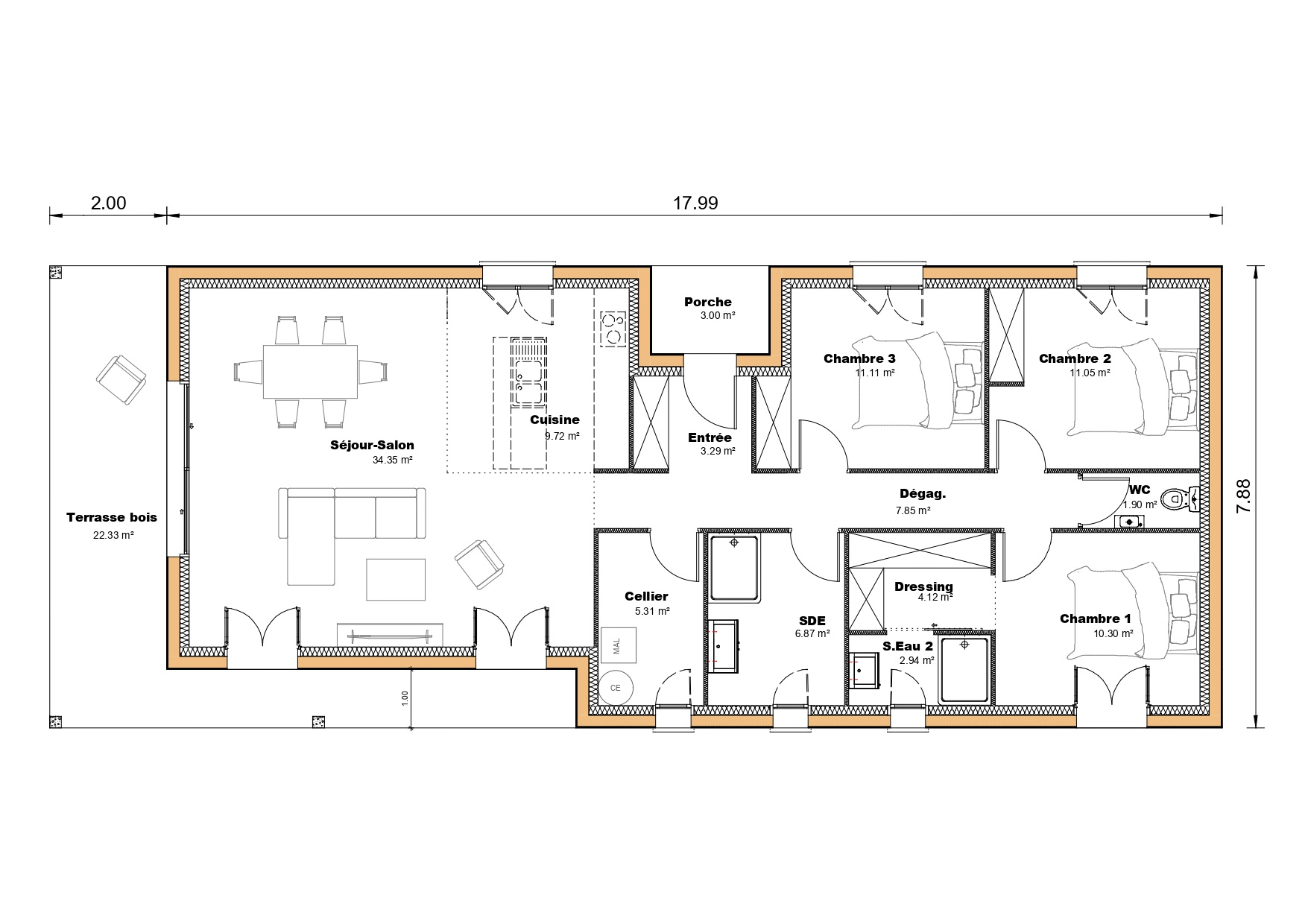
Votre future maison: Le charme de la ‘Longère’ alliée à la modernitéDécouvrez notre modèle Longère, une maison de 108 m2 pensée pour le confort et la convivialité: Espace de vie traversant: Une superbe pièce de vie de 45 m2 avec cuisine ouverte, baignée de lumière naturelle.
Extérieur Premium: Une terrasse en bois de plus de 20 m2, véritable prolongement du salon pour vos soirées d’été.
Espace Parentale Privatif: Une suite complète avec salle d’eau et Wc pour votre totale autonomie.
Espace Enfants: 2 chambres spacieuses et une salle de bain dédiée.
Confort & Performance: Une maison livrée prête à décorer, répondant aux dernières normes énergétiques.
Budget du projet: Prix global: 264 000 € (Comprend: Terrain + Maison livrée prête à décorer + Frais annexes.
Hors taxe d’aménagement).
Offrez à votre famille la qualité de vie qu’elle mérite avec Maisons Sic, votre constructeur de référence depuis 1972.
Terrain vendu directement par notre partenaire foncier sans entremise du constructeur.
Pour plus d informations contacter votre conseiller maisons Sic Nicolas Aznar au O5 53 70 68 82.


