Opportunité de construction à Lalanduse: Maison Performance 4 sur un terrain de 1 872 m2 Situé sur la charmante commune de Lalanduse (47330), découvrez ce superbe terrain de 1 872 m2 prêt à accueillir votre futur projet de vie.
Maisons Sic, votre constructeur de référence dans le Sud-Ouest depuis 1972, vous propose de bâtir le modèle Performance 4.
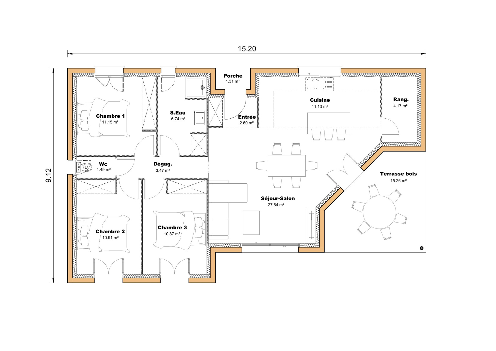
Cette villa de 90 m2 a été conçue pour allier esthétisme, convivialité et haute performance énergétique.
Les points forts de ce projet: Espace nuit: 3 chambres spacieuses et confortables.
Espace vie: Une pièce de vie lumineuse optimisée pour votre quotidien.
Extérieur: Une terrasse couverte intégrée pour profiter de votre jardin en toute saison.
Qualité: Une construction pérenne bénéficiant du savoir-faire historique de Maisons Sic.
Budget total du projet: 227 000 € (Ce prix inclut: la maison, le terrain, les raccordements, les frais de notaire ainsi que la taxe d’aménagement).
Pour plus d informations contacter votre conseiller maisons Sic Nicolas Aznar au O7 81 76 99 45 Note: Terrain vendu directement par notre partenaire foncier sans entremise du constructeur.
.




