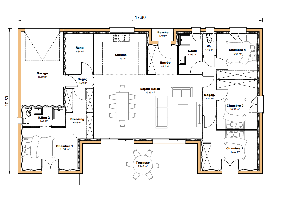
Montagnac sur Auvignon, les maisons Sic vous propose sur ce terrain de 1876 m2 plat, le projet de construction de cette belle villa familiale en forme de U d’une superficie habitable de 125 m2.
Elle profite d’une belle luminosité et d’un confort exceptionnelle dù à ses matériaux de construction.
Elle offre également de nombreux rangements, un vaste garage, de 4 chambres dont une suite parentale et d’une belle terrasse carrelée de 25 m2.
Son chauffage est assuré par une pompe à chaleur.
Maison entièrement personnalisable.
Installez vous sur cette grande terrasse et profitez du moment présent.
Maison certifiée Re 2020 avec assurance dommage ouvrage incluse.
Une étude sol G2 sera réalisée.
Comme des milliers de famille depuis 52 ans maintenant, faites confiance au plus vieux constructeur de maisons individuelles en Lot et Garonne pour votre futur projet de construction.
L’ensemble du projet comprend la maison (prête à décorer), le terrain, les couts d’adaptation au sol et les couts liés au raccordement des différents réseaux techniques s’élève au prix de 336 038 €.
Exemple d’enveloppe budgétaire pour la réalisation d’une Maison Sic prête à décorer, tous frais compris hors frais annexes (financier et notaire).
Photo non contractuelle Terrain d’une valeur de 75 000 € vendu directement par son propriétaire, à contacter par vous et sans entremise du constructeur MAISONS Sic.
Contactez Cyril Martinelli au 06 15 39 92 99 pour plus d’informations.










