Faites un choix durable pour l’avenir en construisant avec Maisons Sic.
Venez découvrir ce magnifique terrain de 2 060 m2 situé à Pibrac, dans un emplacement privilégié sans vis à vis.
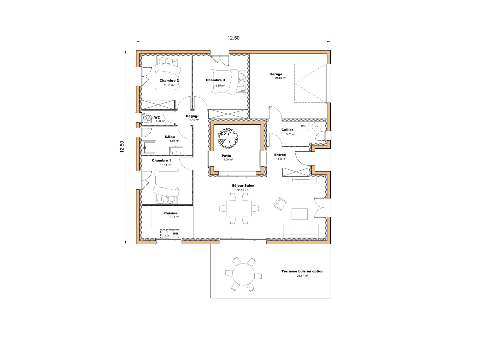
Imaginez vous vivant dans une maison de 98 m2, lumineuse, spacieuse et confortable, avec des espaces de vie agréables, une cuisine ouverte, 4 chambres confortables, deux salles de bains équipées.
Toutes nos maisons RE2020 sont construites sur mesure, en ossature bois, maçonnées, ou mixtes.
Pour un prix total de 573 255 euros (frais de notaire et branchement compris).
Renseignement auprès de Clara Mages-Maison Sic au O6 66 64 11 12.
Cette annonce concerne un terrain vendu au prix de 250 000 euros, une maison au prix de 275 000 euros (hors finitions) aux normes RE2020 ; les frais de notaire s’élèvent à 19 055 euros + 29 200 euros de frais annexes (taxe d’aménagement, terrassement, raccordements, viabilisation …).
Ce terrain est vendu directement par un partenaire sans entremise du constructeur Maisons Sic.
.






