Sur la commune de Sainte-Bazeille dans le Lot et Garonne, à proximité de Marmande, découvrez ce projet complet terrain et maison dans un lotissement moderne et agréable, calme et bien situé avec toutes les commodités du village à portée de main: commerces, écoles, transports en commun et services de santé.
Le terrain de 289 m2 est viabilisé et raccordé au tout à l’égout, facilement aménageable pour accueillir votre projet de construction.
Il offre un cadre de vie agréable, idéal pour un premier achat ou un projet locatif.
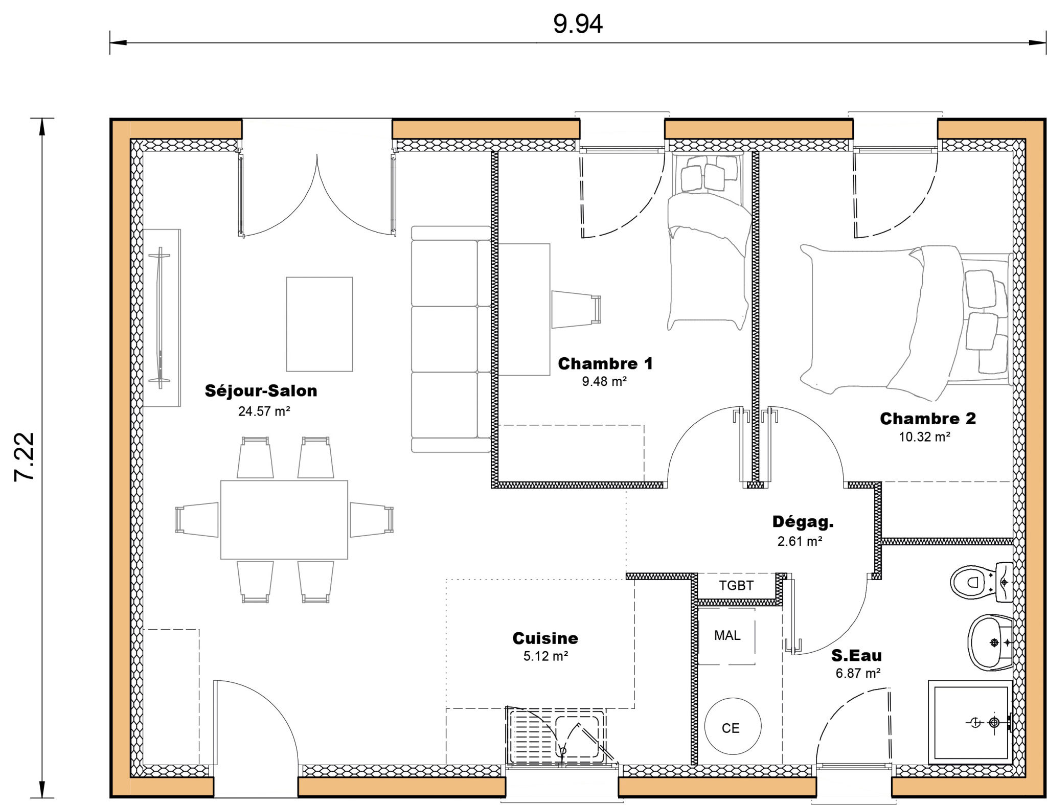
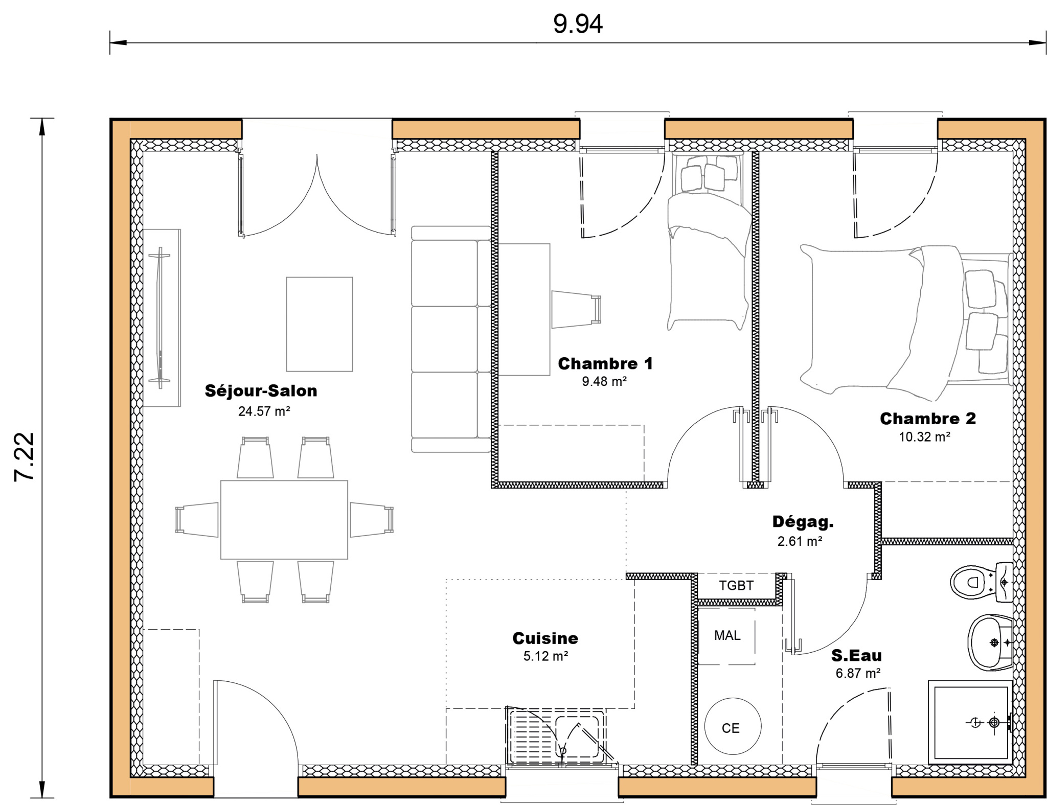
Le projet comprend la construction du modèle Primo, maison compacte et fonctionnelle de 58 m2 habitables idéale pour les retraités ou pour un investissement locatif.
La maison propose une pièce de vie lumineuse et fonctionnelle de 30 m2, ouverte et conviviale, une salle d’eau complète et deux chambres avec rangements intégrés.
L’agencement de la maison est pensé pour offrir fonctionnalité, confort et praticité au quotidien.
Les plans sont entièrement personnalisables selon vos besoins et envies, permettant d’adapter la disposition des pièces, les ouvertures et les surfaces pour créer un logement parfaitement adapté à votre mode de vie.
La maison est équipée d’un système de chauffage avec climatisation réversible et radiateurs dans les chambres pour un confort thermique optimal.
Le carrelage est prévu dans toutes les pièces et la salle d’eau est entièrement aménagée.
Le prix global du projet est de 135 708 €, incluant-le terrain-la maison-les frais de notaire-les raccordements Terrain vendu directement par son propriétaire sans entremise de la part des Maisons sic.
Les informations sur les risques auxquels ce bien est exposé sont disponibles sur le site Georisques www.
georisques.
gouv.
fr Projet proposé et suivi par votre conseillèreCamille Simon 06 59 47 39 86.








