Sur la commune de Hourtin, à proximité immédiate des commodités, Proche de l’île aux enfants et de la foret domaniale, découvrez ce projet complet terrain et maison dans un cadre de vie agréable.
Le terrain de 524 m2, facilement aménageable pour accueillir votre projet de construction.
Il offre une exposition agréable et un environnement idéal pour une maison familiale.
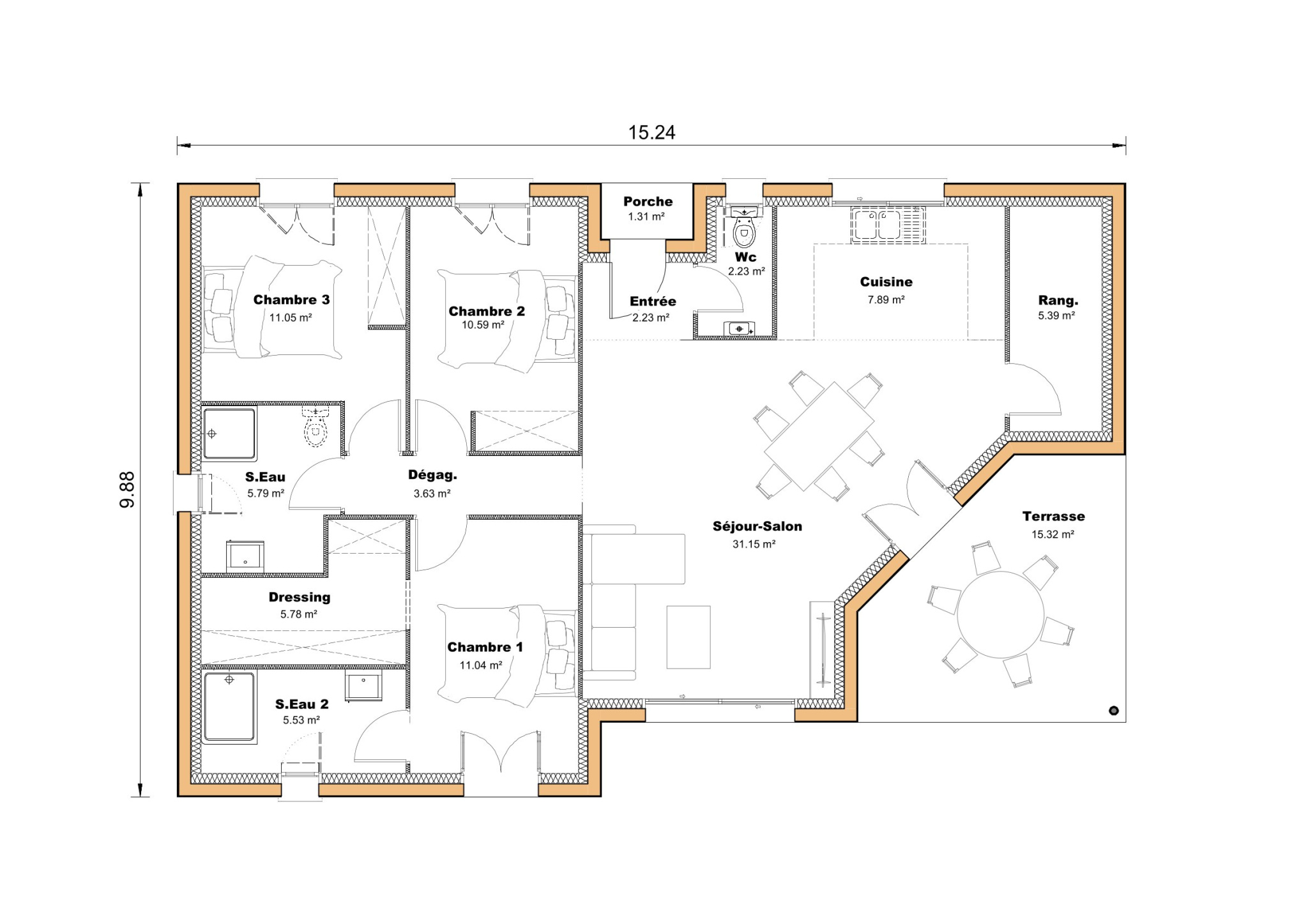
Le projet comprend la construction du modèle Performance 04 Mob, maison ossaturebois de 102 m2 habitables avec terrasse couverte de 15 m2.
La maison propose une grandepièce de vie lumineuse ouverte et conviviale, un cellier attenant à la cuisine, un Wc séparé etune salle d’eau complète.
La partie nuit comprend 3 chambres avec rangements intégrés, offrant confort etfonctionnalité au quotidien.
Les plans sont entièrement personnalisables selon vos besoins etenvies, permettant d’adapter l’agencement, les surfaces et les ouvertures pour créer unemaison qui vous ressemble.
La maison est équipée d’un système de chauffage performant avec climatisation réversible, Le carrelage est prévu dans toutes les pièces et la salle d’eau est entièrement aménagée pourun confort optimal.
Une offre spéciale de 2 500 € est incluse à valoir sur une cuisine de notre showroom pour compléter votre projet.
Le prix global du projet est de 392 000 €, incluant-le terrain+ frais annexes- la maison- les frais de notaire Terrain vendu directement par son propriétaire sans entremise de la part des Maisons SICLes informations sur les risques auxquels ce bien est exposé sont disponibles sur le site Georisques www.
georisques.
gouv.
fr Projet suivi par votre conseiller commercial Maisons SIC Yoan Faucher O556632072.








