Constructeur de maisons individuelles depuis 50 ans

dans tout le sud-ouest de la France

Constructeur de maisons individuelles depuis 50 ans

dans tout le sud-ouest de la France

Vente maison à St yzan de soudiac (33920) de 70 m2 habitable sur terrain de 670 m2

Je souhaite plus d'informations sur cette annonce

Détails

197 000 €

Sur la commune de Saint yzan de soudiac, à proximité des commodités de Saint savin, découvrez ce projet complet terrain et maison dans un cadre de vie agréable.

Le terrain de 670 m2, facilement aménageable pour accueillir votre projet de construction.

Il offre une exposition agréable et un environnement idéal pour une maison familiale.

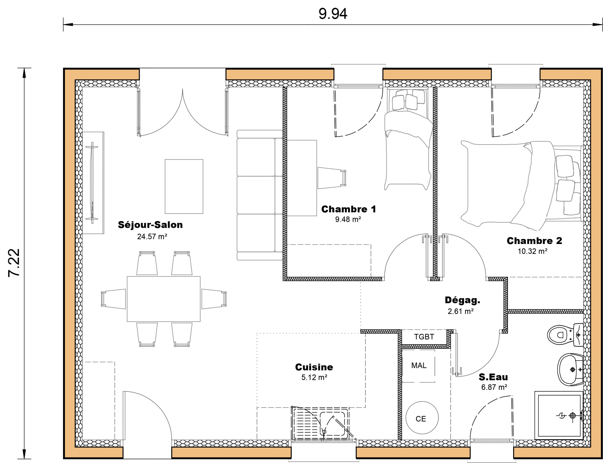
Le projet comprend la construction du modèle Primo 02 Mob, maison ossature bois de 70 m2 habitables.

La maison propose une pièce de vie lumineuse ouverte et conviviale, un Wc et une salle d’eau complète.

La partie nuit comprend 3chambres avec rangements intégrés, offrant confort et fonctionnalité au quotidien.

Les plans sont entièrement personnalisables selon vos besoins et envies, permettant d’adapter l’agencement, les surfaces et les ouvertures pour créer une maison qui vous ressemble.

La maison est équipée d’un système de chauffage performant avec climatisation réversible, Le carrelage est prévu dans toutes les pièces et la salle d’eau est entièrement aménagée pour un confort optimal.

Une offre spéciale de 2 500 € est incluse à valoir sur une cuisine de notre showroom pour compléter votre projet.

Le prix global du projet est de 197 000 €, incluant-le terrain+frais annexes- la maison- les frais de notaire Terrain vendu directement par son propriétaire sans entremise de la part des Maisons SICLes informations sur les risques auxquels ce bien est exposé sont disponibles sur le site Georisques www.

georisques.

gouv.

fr Projet suivi par votre conseiller commercial Maisons SICYoan FAUCHERO5 56 63 2O 72.

Caractéristiques

Lieu

St yzan de soudiac
33920

Retrouvez d'autres maisons dans le département 33