Sur la commune de La teste de buch, à proximité immédiate des commodités, découvrez ce projet complet terrain et maison avec un cadre de vie agréable.
Le terrain de 740 m2 est viabilisé et raccordé au tout à l’égout, facilement aménageable pour accueillir votre projet de construction.
Il offre une exposition agréable et un environnement idéal pour une maison familiale.
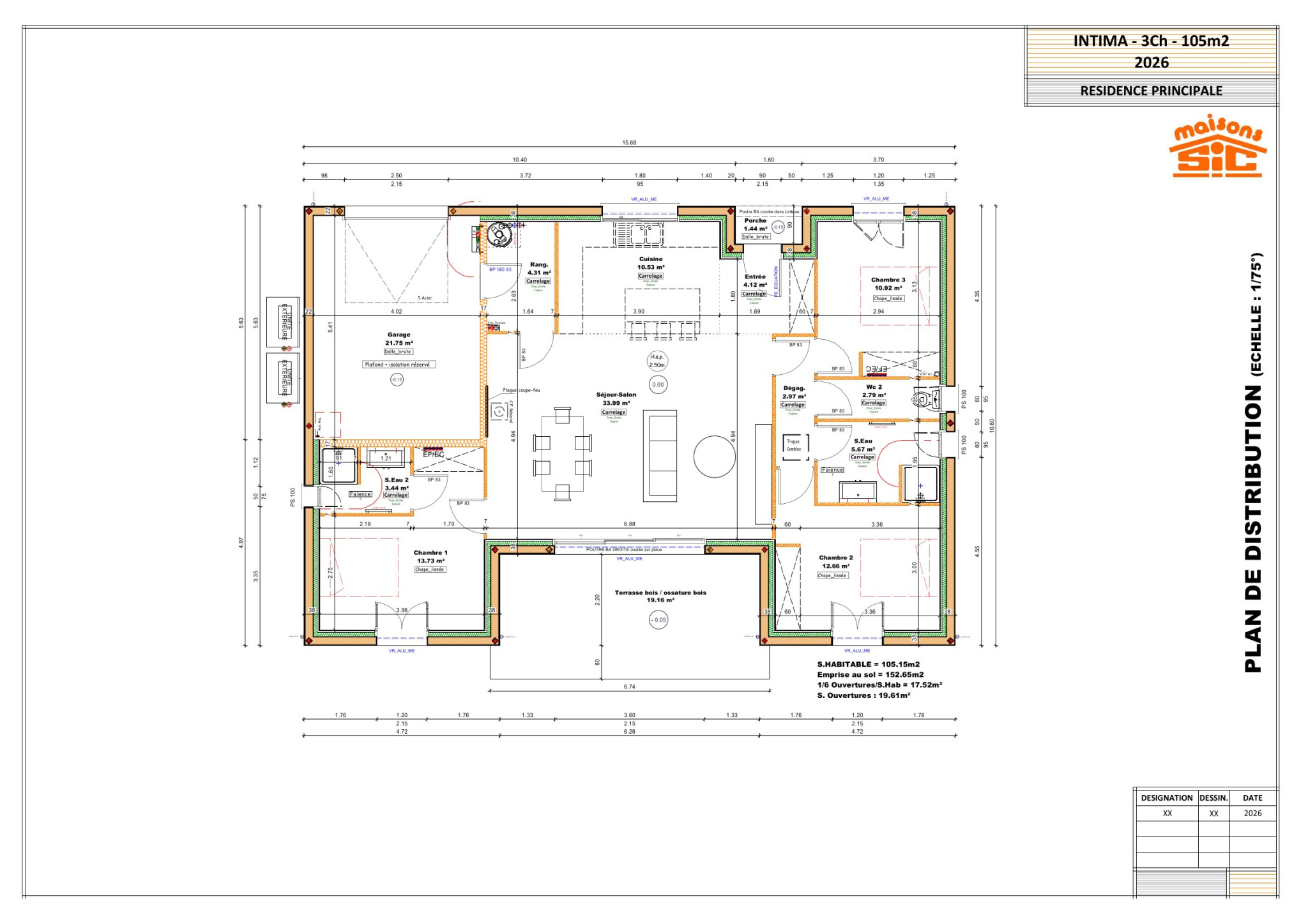
Le projet comprend la construction du modèle Intima, maison ossature bois de 105 m2 habitables avec garage de 15 m2.
La maison propose une grande pièce de vie lumineuse, ouverte et conviviale, un cellier attenant à la cuisine, un Wc séparé et une salle d’eau complète.
La partie nuit comprend trois chambres avec rangements intégrés, offrant confort et fonctionnalité au quotidien Les plans sont entièrement personnalisables selon vos besoins et envies, permettant d’adapter l’agencement, les surfaces et les ouvertures pour créer une maison qui vous ressemble.
La maison est équipée d’un système de chauffage gainable.
Ce système est intégré dans les plafonds et diffuse l’air chaud ou froid de manière homogène dans toutes les pièces grâce à des bouches de diffusion discrètes.
Il assure une température uniforme, un confort optimal et préserve l’esthétisme intérieur sans radiateurs apparents Le carrelage est prévu dans toutes les pièces et la salle d’eau est entièrement aménagée pour un confort optimal.
Une offre spéciale de 2 500 € est incluse à valoir sur une cuisine de notre showroom pour compléter votre projet.
Le prix global du projet est de 670 000 €, incluant-le terrain+frais annexes- la maison- les frais de notaire Terrain vendu directement par son propriétaire sans entremise de la part des Maisons SICLes informations sur les risques auxquels ce bien est exposé sont disponibles sur le site Georisques www.
georisques.
gouv.
fr Projet suivi par votre conseiller commercial Maisons SIC Yoan Faucher O5 56 63 2O 72.








