Léojac terrain plat de 1180M2quartier résidentiel.
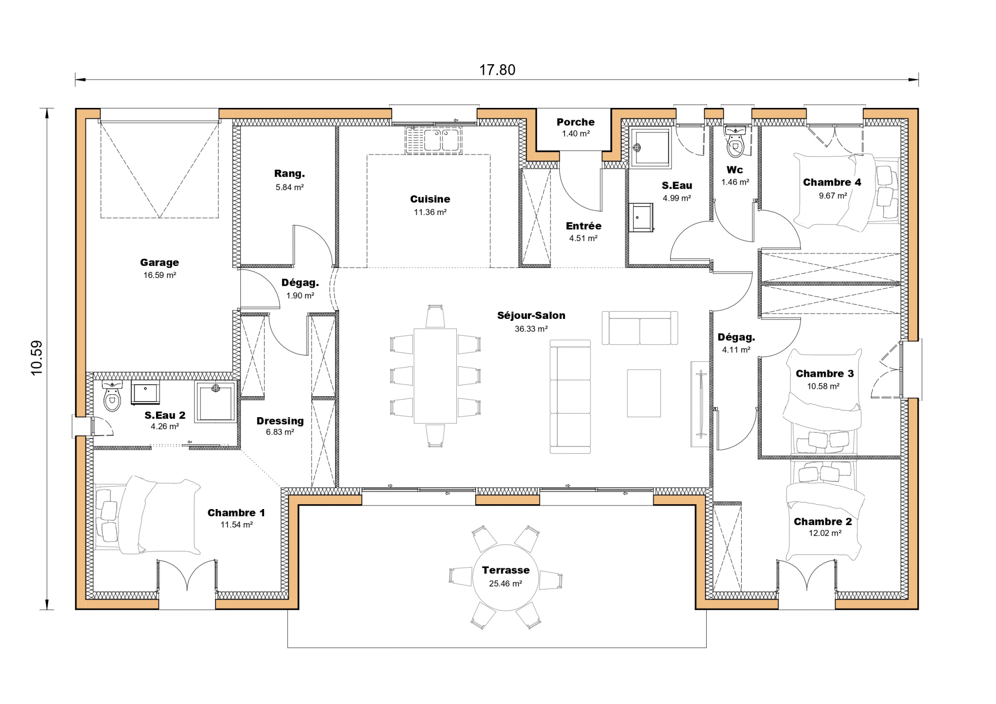
Maison re2020 t4/T5 125m2 Idéal famille.
Prestations Haut de Gamme.
Maison et terrain 300 600euros Stephane CerdanMaisons SIC06 62 48 38 72 Cette annonce concerne un terrain vendu au prix de 58 000 euros, une maison vendue au prix de 238 000 euros (hors finitions) aux normes RE2020; les frais de notaire s’élèvent à 4600 euros; 15.
500 euros de frais annexes (terrassement, raccordement.
).
Ce terrain est vendu directement par un partenaire sans entremise du constructeur Maisons Sic.
.







